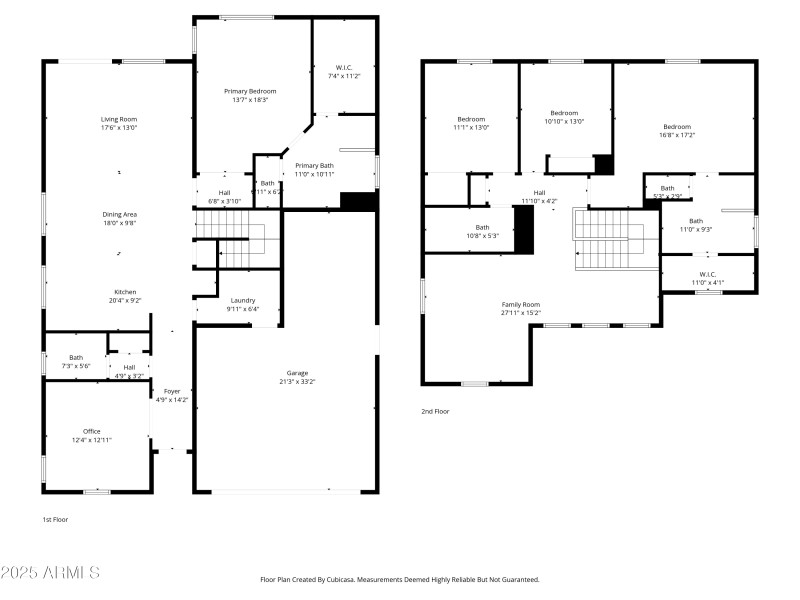
Well-maintained two-story home in Surprise featuring two master bedrooms, with one conveniently located downstairs and the other upstairs—each offering a walk-in closet and a private master bathroom, providing excellent flexibility for guests or multigenerational living. Select bathrooms are equipped with handicapped grab bars, adding extra safety and accessibility. The home includes 4 bedrooms, 3.5 baths, a loft, and a den ideal for a home office.
The open kitchen features stainless steel appliances, granite countertops, a center island with breakfast bar seating, and a modern backsplash. Outside, enjoy low-maintenance landscaping, an RV gate, and a stone-accented exterior. The backyard includes a covered patio and pool, making it a comfortable space for relaxing or entertaining.
Head west on W Cactus Rd toward N 156th Ln, Left on N Greer Ranch Pkwy, Left on W Shaw Butte Dr, Right on N 158th Ln, Left on W Laurel Ln. Property will be on the left.
Dwelling Type: Residential
Subdivision: GREER RANCH NORTH PHASE 1
Year Built: 2014, County: N/A
Head west on W Cactus Rd toward N 156th Ln, Left on N Greer Ranch Pkwy, Left on W Shaw Butte Dr, Right on N 158th Ln, Left on W Laurel Ln. Property will be on the left.
Listing is courtesy of eXp Realty
Sign in to your account to continue