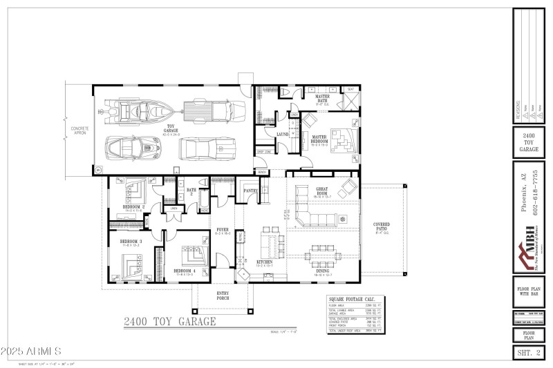
Breaking ground March 2026—secure a luxury home before construction begins! Set on just over an acre in North Surprise with NO HOA, this estate offers privacy, space, and the rare chance to personalize finishes early in the build. The plan features expansive living areas, a private casita, and a toy garage positioned to capture striking Arizona sunsets. With room for horses and space to design a resort-style yard—pool, spa, fire features, and seamless indoor-outdoor flow—this is elevated desert living. A builder-included privacy wall and low-maintenance front landscaping make this an exclusive opportunity to bring your vision to life.
North on 163rd Ave to White Wing Rd, West, Left to 167th Ave, South, Left to the 1-acre property.
Dwelling Type: Residential
Subdivision: Unincorporated Maricopa County
Year Built: 2026, County: N/A
North on 163rd Ave to White Wing Rd, West, Left to 167th Ave, South, Left to the 1-acre property.
Listing is courtesy of eXp Realty
Sign in to your account to continue