SUPERIOR LOCATION in the heart of Gilbert !
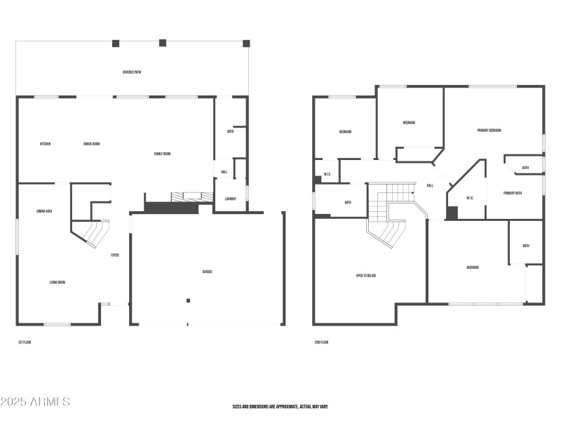
4 BR / 4 BA home with dual Primary Bedrooms.
Striking 20+ Ft. vaulted ceilings. Separate living & family rooms & upgraded kitchen features granite counters, 42'' cabinets & upgraded GE Stainless Steel appliances.
Newer carpet, updated light fixtures and new paint throughout. 3-car garage, updated HVAC in 2024, new paint in 2025 !
Get acquainted with the perfect backyard that delivers an outdoor kitchen & fireplace, recently updated pool, extended covered patio & no neighbors to the north offering even more privacy.
Walk to Finley Farms Elementary School, nearby parks & the Greenfield Lakes Golf Course !
Only 10- minutes to downtown Gilbert, 5 min. to
the Santan Mall & Top Golf, 25 min. to Phoenix Sky Harbor. A MUST SEE !
South on Val Vista, East on Mesquite, South on Brett, East on Rawhide to the property.
Dwelling Type: Residential
Subdivision: FINLEY FARMS SOUTH PARCEL 12
Year Built: 1996, County: N/A
South on Val Vista, East on Mesquite, South on Brett, East on Rawhide to the property.
Listing is courtesy of Keller Williams Realty Sonoran Living
Sign in to your account to continue