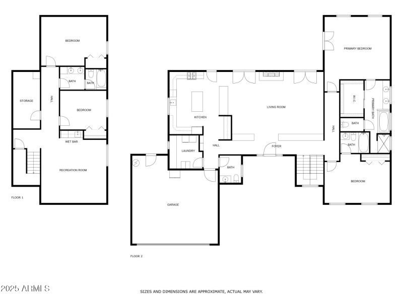
Exquisitely updated and truly move-in ready, this rare Arcadia-area basement residence offers refined living with exceptional versatility. Featuring almost 3600 sq ft with 4 bedrooms, 3.5 baths, two primary suites, two expansive living areas, and over 9' ceilings throughout, the open floor plan is ideal for both relaxed living and elegant entertaining. The chef-inspired kitchen includes gas cooking and quartz countertops throughout, complemented by numerous upgrades, ample storage throughout, and an epoxy-finished garage. Outdoors, enjoy a resort-style setting with an oversized covered patio, built-in gas grill and outdoor kitchen, saltwater pool and spa with swim jets, putting green, and beautifully designed low-maintenance turf—an entertainer's dream.
South on Indian School, East on Thomas, South on 42nd St, East on Edgemont to home.
Dwelling Type: Residential
Subdivision: Rancho Ventura
Year Built: 2006, County: N/A
South on Indian School, East on Thomas, South on 42nd St, East on Edgemont to home.
Listing is courtesy of Key Select Real Estate
Sign in to your account to continue