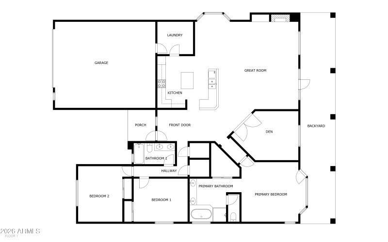
Some homes are just places to live. This one has been truly cared for. Welcome to 1370 S Central Drive, a home that tells a story of pride, consistency, and years of thoughtful ownership. Offered by its original owner, this Chandler residence has been lovingly maintained from day one, creating a rare sense of warmth and authenticity you can feel the moment you step inside. Natural light fills the open living spaces, setting an easy, comforting tone that makes the home feel welcoming and familiar, like it's been waiting for you. The layout flows effortlessly, designed for real life and real connection. At the heart of the home, the kitchen offers generous cabinetry, ample counter space, and a seamless connection to the dining and living areas, perfect for shared meals, quiet mornings, and moments that turn into memories. It's a space built for togetherness, not just show. The primary suite serves as a peaceful retreat, offering privacy and calm at the end of the day. Additional bedrooms provide flexibility for guests, work-from-home needs, or creative space, ready to evolve with you through every season of life. Fresh, neutral finishes throughout reflect the care this home has received, making it truly move-in ready. Step outside to your private backyard escape, where a sparkling pool, covered patio, and low-maintenance landscaping invite you to slow down and enjoy the Arizona sunshine. Whether it's weekend lounging, evening swims, or gatherings under the stars, this space has hosted years of joy, and is ready for many more. Set in a quiet Chandler neighborhood, the location balances peace with everyday convenience. With a Walk Score of 10 and Bike Score of 33, you're close to shopping, dining, and major freeways, while still enjoying the comfort of a residential setting. Homes like this, original owner, well-loved, and thoughtfully maintained, don't come around often. This is more than a house. It's a legacy of care, ready for its next chapter.
North of Germann to Willis, west to Commanche, north to Mulberry, west to Central and north to property
Dwelling Type: Residential
Subdivision: CARRIZAL-X
Year Built: 1998, County: N/A
North of Germann to Willis, west to Commanche, north to Mulberry, west to Central and north to property
Listing is courtesy of The Melcher Agency
Sign in to your account to continue