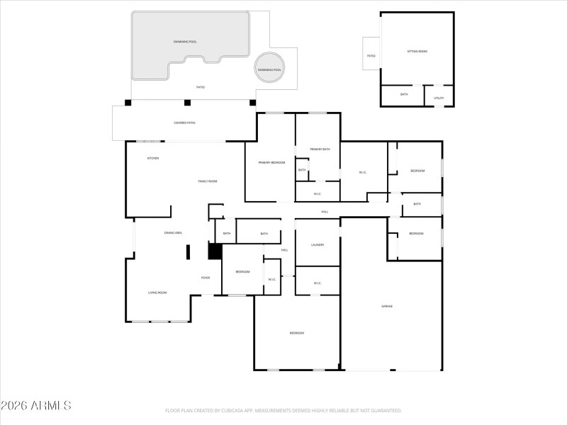
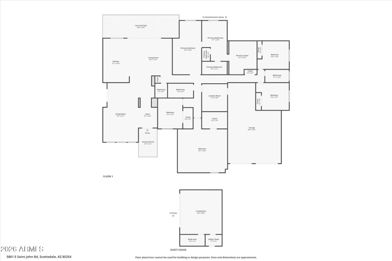
Welcome to this stunning fully remodeled estate in the heart of Scottsdale's coveted 85254 zip code. Thoughtfully redesigned with a substantial new addition, this home now offers over 4,500 square feet of luxurious living space blending modern design with everyday comfort.
Featuring 5 spacious bedrooms plus multiple flex areas ideal for a home office, gym, playroom, or media space, and 4.5 beautifully appointed bathrooms, this residence delivers exceptional versatility for today's lifestyle. Soaring ceilings and massive sliding glass doors flood the home with natural light and create a seamless indoor-outdoor living experience.
Situated on a large lot, the property also includes a detached casita—perfect for guests, multigenerational living, or rental income. The expansive grounds provide ample space for entertaining, relaxing, or future customization.
From the high-end finishes and open-concept layout to the impressive scale and thoughtful design, this home offers the rare combination of new-construction feel with established neighborhood charmall just minutes from world-class shopping, dining, and entertainment.
Dwelling Type: Residential
Subdivision: OAKHURST
Year Built: 1984, County: N/A
Listing is courtesy of Arizona Sunset Realty
Sign in to your account to continue