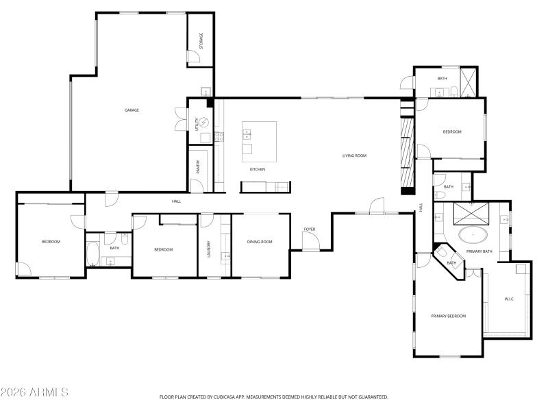
An architecturally driven desert residence set on just over an acre. Built in 2018, this modern residence offers 4 bedrooms, 3.5 baths, and a private pool, thoughtfully designed to prioritize space, light, and livability. The home features consistent tile flooring throughout, curated accents, contemporary fixtures, and exceptional lighting enhanced by a whole-home Lutron system. Generous gathering spaces and a flexible floor plan provide both openness and privacy, ideal for a variety of lifestyles. Expansive stacking glass doors connect the interior to generous paver patios, outdoor entertaining areas, and beautifully landscaped desert grounds. Surrounded by wide skies, desert terrain, and the distinctive character of Cave Creek, offering a setting that feels both connected and removed. This residence was created for buyers who value architecture, light, and thoughtful detail over passing trends. The builder's European background in electrical design is evident in the home's layered, balanced lighting, creating an atmosphere that feels intentional and composed from day to night. The floor plan offers flexibility and privacy, including a secondary ensuite bedroom well suited for guests or multigenerational living.
A striking glass-and-iron front door anchors the arrival experience, opening from a private front courtyard that sets a dramatic yet welcoming tone. The kitchen is both refined and highly functional, centered around a large island and featuring stacked cabinetry, a sleek backsplash with concealed outlets, built-in refrigeration, beverage fridge, appliance garage, and pot filler...all designed to keep surfaces visually clean and streamlined. The primary suite offers a well-appointed space with a dual-entry walk-in shower, soaking tub, and a generous walk-in closet with an in-closet washer and dryer for added convenience.
There is a natural gas line to the property (not connected) and the home is plumbed for natural gas, with a stub at the cooktop. The property benefits from no HOA, offering flexibility rarely found in custom desert homes. The 3-car garage adds versatility with a mini-split cooling system and EV charger, along with ample room for vehicles, gear, and recreational toys. Located minutes from Cave Creek's distinctive western town atmosphere, with nearby dining, shopping, and local favorites, the home combines architectural intention with access to the character, convenience, and lifestyle that define the area.
From Cave Creek Rd, west on Carefree Hwy, north on 48th St, west on Quailbrush Rd to home on your left.
Dwelling Type: Residential
Subdivision: ESTADO DE CHOLLA
Year Built: 2018, County: N/A
From Cave Creek Rd, west on Carefree Hwy, north on 48th St, west on Quailbrush Rd to home on your left.
Listing is courtesy of The Noble Agency
Sign in to your account to continue