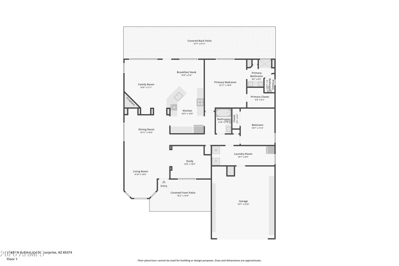
TURN KEY HOME: Located in the guard-gated 55+ Arizona Traditions community, this corner-lot 2 bed + den, 2 bath home offers 1,800 sq ft of comfortable, resort-style living. Enjoy access to a championship golf course, clubhouse, heated pools, fitness center, pickleball, tennis, and an active social lifestyle. Inside, the home features a cozy front porch, spacious living area with room for dining, and a custom-built-in with accent lighting. The den/office is conveniently located off the living room. The kitchen includes granite countertops, white cabinetry with crown molding, stainless Whirlpool appliances, breakfast bar, and breakfast nook, opening to the family room with a gas fireplace. The large owner's suite offers dual sinks, a walk-in shower, and a private water closet. A generous second bedroom and bath, oversized laundry room with extra space, and a garage with built-in storage cabinets add to the home's appeal. Affordable solar lease helps keep energy costs low. Solar lease $76.78/month
Dwelling Type: Residential
Subdivision: ARIZONA TRADITIONS 7
Year Built: 1998, County: N/A
Listing is courtesy of Axen Realty, LLC
Sign in to your account to continue