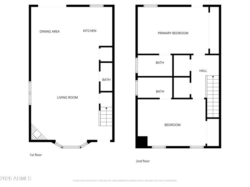
BACKING DIRECTLY TO THE FOREST, this home provides exceptional privacy and a serene natural backdrop rarely found in townhome communities. Beautifully positioned 2-bedroom, 2.5-bath end-unit townhome offers 1,337 sq ft of mountain living at its best. The open and functional floor plan features spacious living areas, ideal for both full-time living and a lock-and-leave mountain retreat. Each bedroom includes its own ensuite bath, while the additional half bath adds convenience for guests. Large windows invite in natural light and frame peaceful forest views, creating a true connection to the outdoors. As an end unit, enjoy added windows, enhanced privacy, and a quiet setting. Step outside to the forested backdropperfect for morning coffee, wildlife watching, or easy access to nearby trails. Located in the heart of Pinetop, this home offers cool mountain summers, four-season enjoyment, and proximity to dining, shopping, recreation, and outdoor adventure.
Whether you're seeking a primary residence, second home, or investment opportunity, this forest-backed end unit delivers comfort, privacy, and the mountain lifestyle you've been waiting for.
Hwy 260, north on Adair thru gate to unit in back.
Dwelling Type: Residential
Subdivision: COUNTRY PINES FORMERLY WHISPERING PINES TOWNHOUSES
Year Built: 1984, County: N/A
Hwy 260, north on Adair thru gate to unit in back.
Listing is courtesy of West USA Realty
Sign in to your account to continue