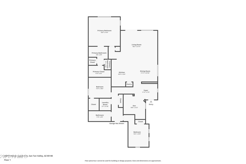
Don't miss this charming 3-bedroom, 2- bath home located in the highly desirable community of Ironwood Crossing. Pride of ownership is evident from the moment you step inside, where an abundance of natural light fills the open-concept floor plan. The spacious great room features a beautiful kitchen with a large island, stainless appliances, granite countertops, a pantry and more! The kitchen flows into a lovely dining, and comfortable family room, making it perfect for both everyday living and entertaining. In addition to the main living spaces, the home offers a versatile bonus office or den. The spacious primary suite provides privacy and has a ton of closet space! Step outside to the backyard and relax taking in peaceful mountain views. This truly is the perfect place to call home! Completing the package, Ironwood Crossing offers walking paths, parks, two pools, a splash pad, disc golf course, tennis courts, and basketball courts. You will love this wonderful community.
From intersection head east on Pima. Go South (Right) on Hawthorn and go left (east) on Honey Locust. Home will be on the north (left) side of the street about halfway down.
Dwelling Type: Residential
Subdivision: IRONWOOD CROSSING - UNIT 2 2014070575
Year Built: 2015, County: N/A
From intersection head east on Pima. Go South (Right) on Hawthorn and go left (east) on Honey Locust. Home will be on the north (left) side of the street about halfway down.
Listing is courtesy of Locality Real Estate
Sign in to your account to continue