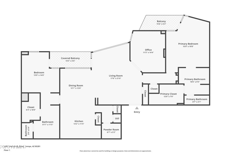
Experience the pinnacle of lakeside luxury at Bridgeview. This stunning, remodeled home boasts an impressive floorplan, with its emphasis on functionality, privacy and views. The two master suites are separated by the living space, with the additional large office providing a light-filled space to work. Each bedroom has its own bathroom that incorporates a spacious vanity, with a soaking tub and separate glass-paneled shower, and includes a substantial walk-in closet with built-in organization. Large windows and access to the balconies give each bedroom an expansive feel and views of the mountains and lake beyond. The half bath provides guests privacy off the living area. Pride of ownership abounds, with attention paid to the finest detail to ensure a seamless transition. The living room, dining area and kitchen provide considerable open and connected spaces for entertaining. Or relax by the gas fireplace framed by windows showcasing the skyline. Natural light is abundant from the floor-to-ceiling glass that lines the entire wall, with east-facing, panoramic views of Four Peaks, Tempe Town Lake, and the preserve mountains that border Arizona State University.
The kitchen has been redesigned with a 2023 remodel that includes gorgeous, one-of-a-kind quartzite counters, new modern cabinets that offer abundant storage, an undercounter beverage refrigerator, GE Cafe appliances, gas cooktop, water filtration system with hot water on demand, and a touch-free faucet.
The 2nd master suite includes a built-in Murphy bed with cabinets and shelving from California Closets, making it perfect for guests and yet providing the ability to transform the large area into a usable space for a fitness break, a craft room, or whatever you can imagine. The den/office offers abundant space, perfect for working from home. It easily accommodates two desks with room to spare, and includes built-in wood cabinets and further storage.
Additional upgrades include new luxury wood-look laminate flooring throughout, combining an understated high-end design with durability and functionality. Motorized blinds in the bedrooms provide privacy and convenience. Installed speakers in multiple rooms give the ability to coordinate music and surround sound. Integrated smart home technology offers convenience and functionality over light, climate and sound controls. Water detection sensors in all pertinent areas give added assurance and peace of mind.
As original owners in the building, the unit is able to offer a rare opportunity for 3 deeded parking spaces (2 w/ EV charging), and a dual sized storage unit that is air conditioned. All is underground and gated, with privacy and security paramount.
Bridgeview is professionally managed to the highest standards, with strong reserves and caring staff, offering amenities that aren't available in other high-rise communities. Enjoy peace of mind with a 24/7 front desk attendant with concierge services and night patrol security. Relax in the heated lap pool and spa or lounge by the pool and take in the water views that overlook the lake. The additional outdoor areas include a fireplace seating area, barbeque grills, green space with a game area, and a wood-fired pizza oven. A fitness center is filled with high-end equipment, locker rooms, and a sauna and steam room. Play billiards, watch a movie in the theater room, reserve the club room with a kitchen for parties and events, or relax in the library with a good book near the fireplace.
The HOA monthly dues also include utilities: with electricity, gas, water, garbage collection, water softener with hot water heating, and other city services covered in one payment.
Location is a key feature of Bridgeview, with Tempe Town Lake as your front yard, Arizona State University as your back yard, and the restaurants, shopping and entertainment of Mill Avenue and downtown Tempe as your playground. Step out of your building and within minutes you can walk the trails along the lakeside or paddleboard off the dock. Have a picnic at Tempe Beach Park or enjoy an outdoor concert or event. Cheer on Sun Devils football or watch a Broadway show at Gammage Auditorium. Pick up the light rail to have access to the east valley or Downtown Phoenix, or drive 10 minutes to Sky Harbor Airport to explore even farther.
Bridgeview combines all the comforts of luxury living without leaving your doorstep, with an ideal location that provides access to the entire Valley and beyond within minutes. Furnishings are available as well. Welcome home to truly effortless style and livability.
From Mill Ave and Rio Salado Pkwy, head East on Rio Salado, turn left at the first traffic light Hayden Ferry Loop, right at roundabout to visitor parking at the end of the driveway in underground parking garage.
Dwelling Type: Residential
Subdivision: BRIDGEVIEW AT HAYDEN FERRY LAKESIDE CONDOMINIUM AM
Year Built: 2008, County: N/A
From Mill Ave and Rio Salado Pkwy, head East on Rio Salado, turn left at the first traffic light Hayden Ferry Loop, right at roundabout to visitor parking at the end of the driveway in underground parking garage.
Listing is courtesy of eXp Realty
Sign in to your account to continue