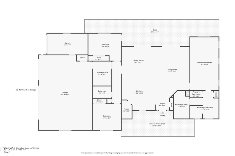
Set on nearly one acre at midfield in Mogollon Airpark (AZ82), this exceptional property offers the perfect base for flying and enjoying Arizona's White Mountains. The owners built this as their forever home, sparing no expense to achieve the finest in craftsmanship, comfort, and functionality. Designed for aviators and adventurers who demand the best, this 2022 custom-built residence combines upscale mountain living with a 50' x 50' aircraft hangar w/ guest apartment, an oversized 4-car garage, and panoramic 180-degree runway views that put you front and center to the action. The thoughtfully designed 3-bedroom, 2-bath home showcases meticulous attention to detail—an open floor plan with high-end finishes, LP SmartSide siding, Trex composite decking, LVP flooring, whole-house humidifier, spray foam insulation, and backup generator for peace of mind. The chef's kitchen boasts a waterfall quartzite island, designer backsplash, GE Profile appliances, a 5-burner range, and a spacious walk-in pantry.
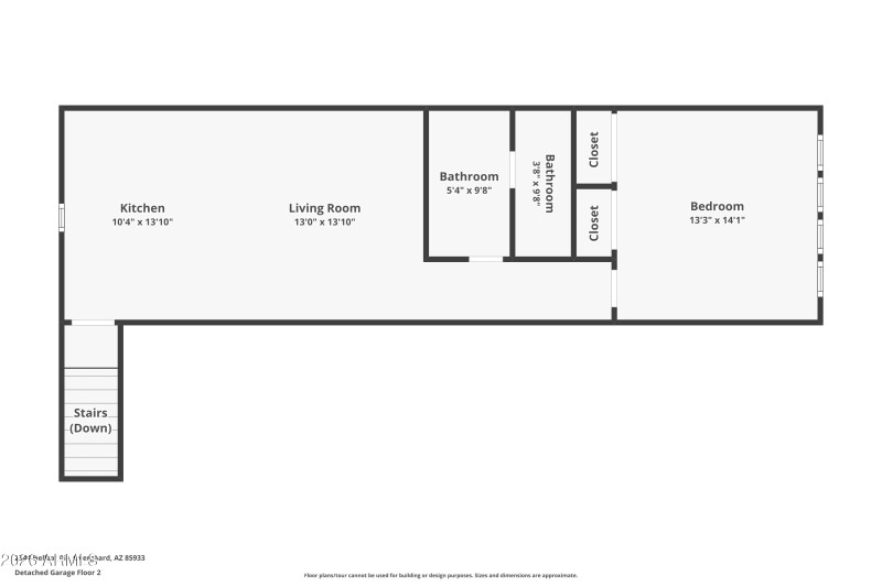
The 2,500 sq ft hangar is equipped with a Schweiss bi-fold door (45' opening with 13' vertical clearance), propane heater, epoxy flooring, sink, and urinal. 2025 updates include a new metal roof, skylights, gutters with underground drainage, and fresh exterior stain. Above the hangar, the furnished 800 sq ft apartment offers a full kitchen, central heating and cooling, and washer/dryer hookups, perfect for guests or extended stays.
The spacious 4-car garage features epoxy floors, spray-foam insulation, and 220V outlets ready for EVs or workshops. Step outside to your back deck or porch for breathtaking sunsets and clear views of aircraft taxiing, taking off, and landing. This midfield location isn't just desirable, it's among the most coveted spots in the community, offering both privacy and direct runway access.
Mogollon Airpark is more than a place to live, it's a lifestyle. Perched at 6,657 feet elevation and just 90 nautical miles northeast of Phoenix, it offers cool summers, mild winters, and endless adventure in every direction. The surrounding White Mountains are packed with opportunities for fishing, off-roading, hiking, exploring forest trails, boating on nearby lakes, and enjoying the charm of a no-box-store small-town community. Here, you'll trade big-city rush for open skies, friendly neighbors, and active EAA gatherings that celebrate the spirit of flight year-round.
This property represents the pinnacle of airpark living, a home built with love, precision, and pride at one of Arizona's most desirable aviation addresses.
Home built in 2022; hangar built in 2002.
From 260, go north on Airpark to Hellcat and west on Hellcat to property.
Dwelling Type: Residential
Subdivision: MOGOLLON AIR PARK UNIT 4B
Year Built: 2022, County: N/A
From 260, go north on Airpark to Hellcat and west on Hellcat to property.
Listing is courtesy of Fathom Realty Elite
Sign in to your account to continue