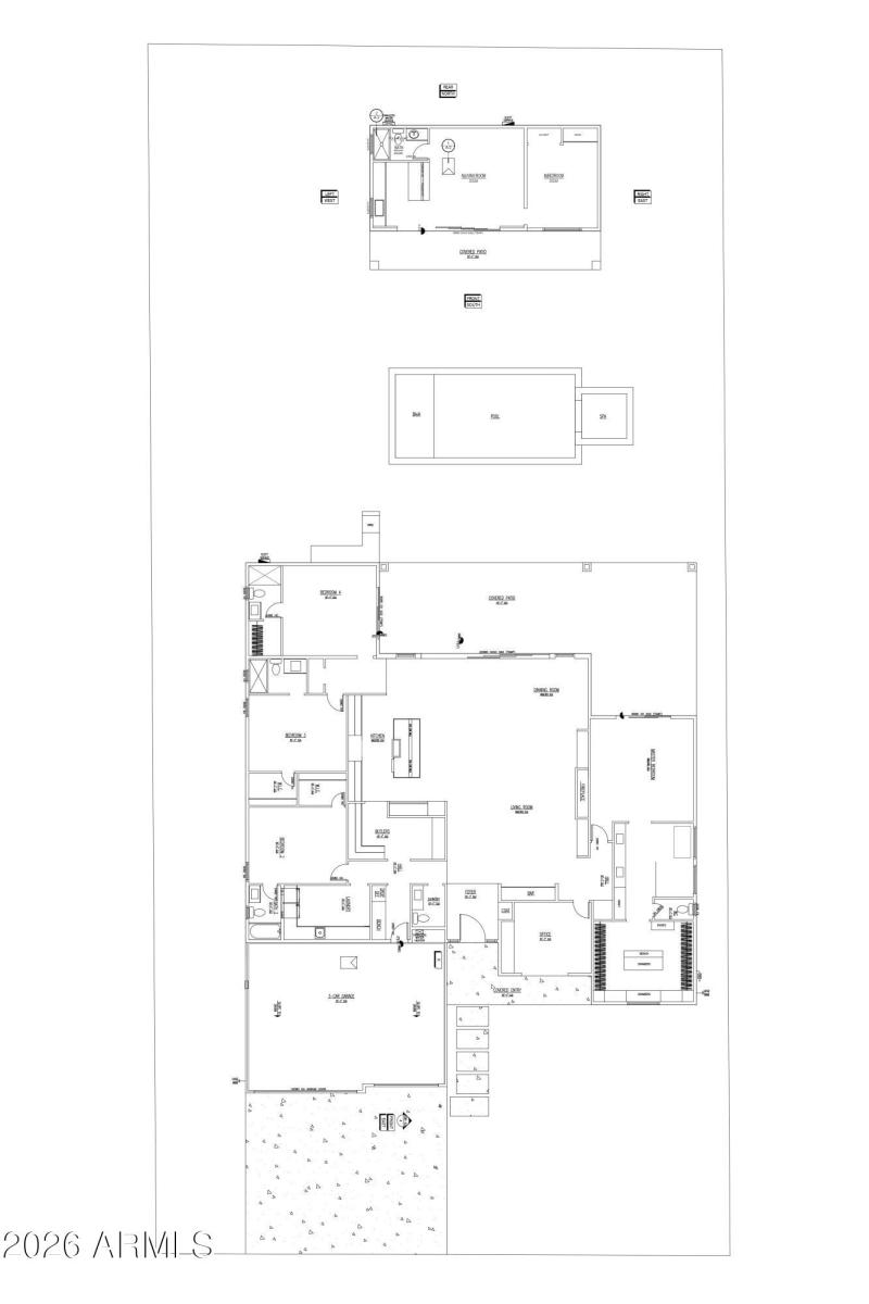
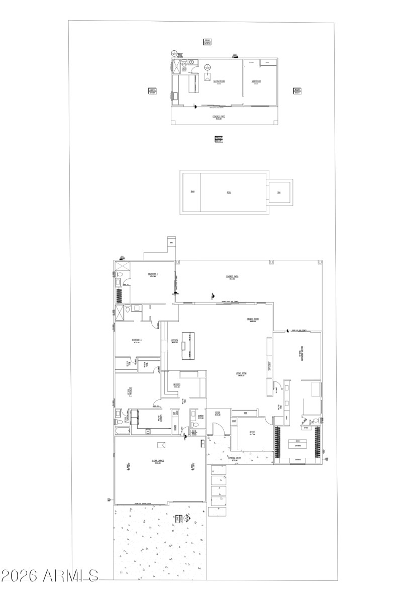
A rare opportunity to CUSTOMIZE a NEW BUILD in Arcadia on an expansive nearly 17,000 sq ft lot. This entertainer's dream features a main house with 4 bedrooms and a dedicated office PLUS a full guest house with kitchen, bathroom and bedroom - very hard to find in this area. The property also has pickleball court, pool, spa, built-in BBQ, firepit, and large grassy space all designed for seamless indoor-outdoor living. Personalize finishes to your taste in one of Phoenix's most sought-after neighborhoods, just minutes from top dining, shopping, and Camelback Mountain.
South on 36th Street, Right on Clarendon, property on Left hand side.
Dwelling Type: Residential
Subdivision: POMELO PARK
Year Built: 2026, County: N/A
South on 36th Street, Right on Clarendon, property on Left hand side.
Listing is courtesy of Compass
Sign in to your account to continue