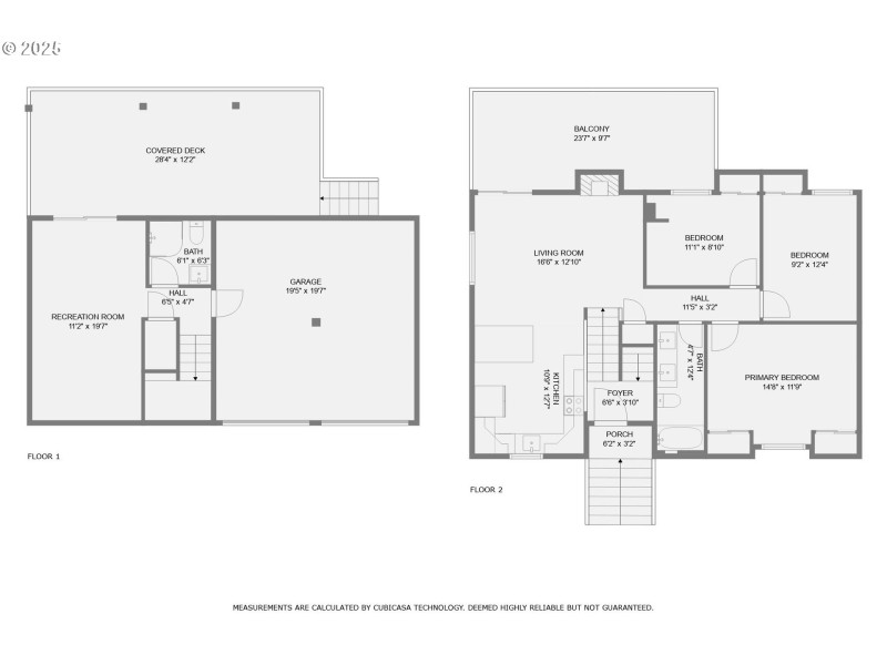
Welcome to this beautifully remodeled 4-bedroom, 2-bath home in the desirable Barclay Hills neighborhood of Oregon City. Thoughtfully updated from top to bottom, this residence blends modern upgrades with classic charm for comfortable, everyday living.Enjoy outdoor living on the expansive new covered Trex deck or the upstairs balcony—both with stunning views, ideal for gatherings or private relaxation. Designed for easy upkeep, the property features stone pavers in the entryway and along both sides leading to the covered deck, creating a very low-maintenance outdoor space.Recent upgrades bring peace of mind, including all-new windows, a brand-new 30-year roof, and fresh interior and exterior paint. Inside, you’ll find new waterproof laminate flooring throughout, a stylish kitchen with quartz countertops, new cabinetry, and stainless steel appliances. Both bathrooms have been fully updated with new vanities, a tiled tub, a new shower insert, and new toilets.The floorplan offers flexibility: three bedrooms and a full bath upstairs, plus a lower-level retreat with a bedroom, full bath, and separate entrance—perfect for multi-generational living, guests, or rental opportunities.Conveniently located near shopping, dining, entertainment, and the charm of Oregon City’s Main Street, this move-in ready home is designed for comfort, versatility, and a low-maintenance lifestyle.
Mollala and Barclay Hills
Dwelling Type: Residential
Subdivision: N/A
Year Built: 1978, County: US
Mollala and Barclay Hills
Listing is courtesy of All Professionals Real Estate