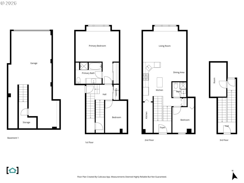
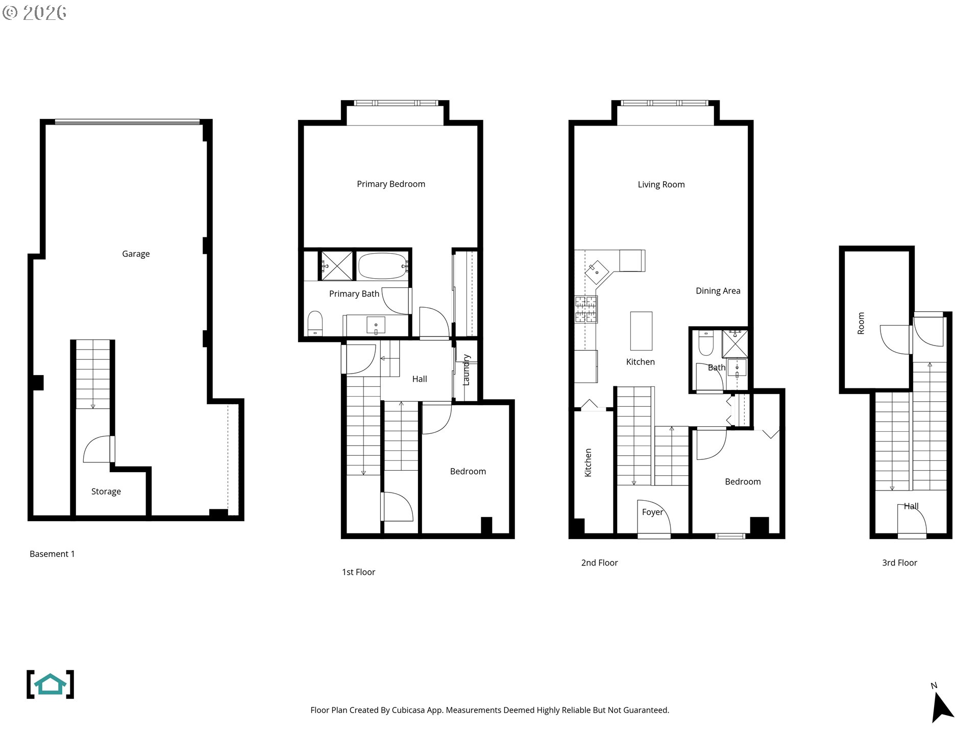
Opportunity awaits in the iconic Union Building. Commercially zoned allowing STRs, this stunning 2 bed (+office), 2 bath townhome offers both lifestyle and flexibility while delivering the perfect fusion of character and contemporary design. This is the largest Phase 1 unit and right in the heart of downtown Hood River! Thoughtfully constructed keeping a modern industrial aesthetic, the home showcases original concrete columns, warm wood stairs, and a dynamic mix of textures and materials that make it truly one-of-a-kind. Expansive windows invite abundant natural light and showcase panoramic views of the Columbia River. The spacious rooftop terrace offers an ideal setting for entertaining or relaxing in privacy thanks to custom landscaping. A private 2-car garage provides ample gear storage and parking, an unbeatable convenience in this strollable location. Just one block from top-rated restaurants, shops, and cafés. It also offers easy access to some of the Gorge’s best outdoor activities, from windsurfing and kiteboarding to skiing and hiking. This multi-use townhouse is a perfect home and investment!
Downtown HR Columbia and 3rd. Unit is farthest west in Phase one.
Dwelling Type: Residential
Subdivision: N/A
Year Built: 2015, County: US
Downtown HR Columbia and 3rd. Unit is farthest west in Phase one.
Listing is courtesy of Copper West Real Estate
Sign in to your account to continue