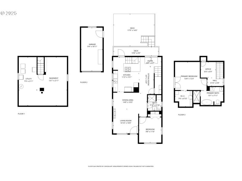
Welcome to this charming Johns Landing bungalow, ideal for those who value timeless character, a walkable location, and low-maintenance living. The sun-filled living room is centered around a cozy fireplace and framed by refinished original hardwood floors, 10-inch baseboards, and detailed trim work. The main level includes an updated kitchen, remodeled full bath, and bedroom featuring bead-board wainscoting. Upstairs, a loft/office provides flexible work-from-home space, while the primary suite offers Mt. Hood views, a walk-in closet, and a beautifully remodeled bathroom with quartz counters, double vanity, marble-tiled shower, soaking tub, tongue-and-groove accent walls, and vintage-inspired fixtures. Outside, enjoy a private, low-maintenance backyard with mature landscaping, & covered pergola. The detached garage features insulated walls and electricity; excellent potential for an office, studio, or ADU (buyer to do due diligence). Other updates include new exterior paint, new garage door in 2024, and in 2021: new plumbing supply and drain lines, electric fireplace, new gutters, and a new mini-split upstairs. A full-size basement with good ceiling height provides abundant storage and potential. Located in one of Portland’s most walkable neighborhoods, you’ll love being just minutes to local coffee shops, cafes, riverfront trails, downtown Portland, and Lake Oswego. [Home Energy Score = 5. HES Report at https://rpt.greenbuildingregistry.com/hes/OR10003036]
Corbett W to Boundary Street
Dwelling Type: Residential
Subdivision: JOHNS LANDING
Year Built: 1928, County: US
Corbett W to Boundary Street
Listing is courtesy of Cascade Hasson Sotheby's International Realty
Sign in to your account to continue