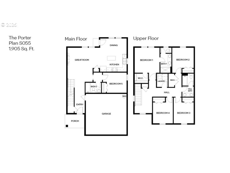
New construction homesite with the Signature Series Package! This sizable Porter two-story floor plan has 5 bedrooms, 3 bathrooms, with a bedroom and full bathroom on the main floor that is ideal for an at-home office or a guest bedroom. Our signature series package includes A/C, blinds, irrigation and landscaping, garage door opener, fencing. The great room has designer features with a fireplace and a floor-to-ceiling painted accent wall. The lavish kitchen has beautiful shaker cabinetry, quartz countertops, and stainless-steel appliances like a gas range/oven and microwave with vent hood. The laundry room is conveniently located upstairs for easy access. The primary bedroom is spacious, it has a walk-in closet, and an en suite bathroom with a double vanity. The hall bathroom adds extra comfort with a double vanity as well. Receive a closing cost credit with use of builder’s preferred lender, reach out for more details. Model office hours are Saturday to Wednesday 9:30am – 4:30pm. Come see D.R. Horton’s wonderful new community in Salem before it’s too late! East Park Village offers residents a great blend of suburban charm and swift access for easy commuting to the state capitol. The new community is just minutes away from the Willamette Valley Center where you can enjoy great dining options. Schedule a tour and find your home at East Park Village! Photos are representative of plan only and finishes may vary as built.
Model office: 113 Greencrest Street NE, Salem Or 97301
Dwelling Type: Residential
Subdivision: N/A
Year Built: 2026, County: US
Model office: 113 Greencrest Street NE, Salem Or 97301
Listing is courtesy of D. R. Horton, Inc Portland
Sign in to your account to continue