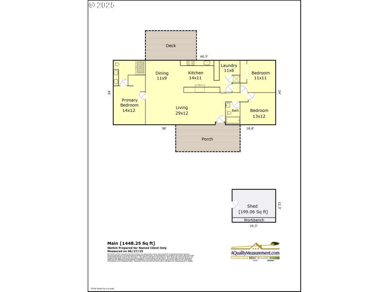
NEW INCREDIBLE PRICE! Tucked away on nearly two flat, private acres, this beautifully updated single-level home offers the rare balance of peaceful country living with quick access to the city. Approximately 20 minutes to downtown Portland, Sauvies Island, St. Johns, and Beaverton, the location is as convenient as it is serene. Step inside to a thoughtfully redesigned 3-bedroom, 2-bath layout that has been fully refreshed from top to bottom. Modern touches include new interior and exterior paint, newer windows, siding, drywall, flooring, light fixtures, and a brand-new water heater - giving you confidence and comfort for years to come. The open concept floor plan creates a warm and inviting flow, perfect for both daily living and entertaining. Outdoors, the property shines with opportunities for relaxation, hobbies, and small-scale farming. A wide front lawn stretches toward a tranquil creek where salmon return each year, while fruit trees and blueberry bushes add seasonal beauty and bounty. Multiple decks extend your living space into the landscape, making it easy to host summer gatherings or enjoy quiet mornings surrounded by nature. Raised garden beds invite you to grow your own produce, and a fenced pasture provides the ideal setup for goats or other animals. A detached woodshop adds room for projects, storage, or creative pursuits. This property is more than a home - it’s a lifestyle. Whether you dream of cultivating a garden, tending animals, or simply having room to breathe, this retreat makes it possible without giving up proximity to the city. Rarely does an acreage property come along that is both move-in ready and so thoughtfully modernized. Come experience the charm, privacy, and potential of this special place - your country retreat just minutes from the heart of Portland. Located in a desirable district with top-rated schools!
Skyline Blvd or 26W, Cornelius Pass Rd., E on 8th Ave., S on Folkenberg St., Driveway on Right
Dwelling Type: Residential
Subdivision: N/A
Year Built: 1979, County: US
Skyline Blvd or 26W, Cornelius Pass Rd., E on 8th Ave., S on Folkenberg St., Driveway on Right
Listing is courtesy of Windermere Heritage