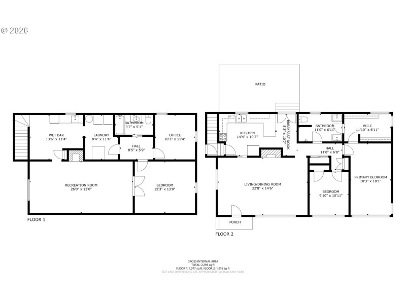
We like big lots and we CANNOT lie! Meet Mx. Gloria, a 1950s classic with massive yard, great bones, & lower-level living space! This darling mid century dollhouse ranch in beloved Lorene Park knows exactly how to work it, & she’s runway ready. Upstairs, a massive picture window steals the show, pouring in sunset light like it’s on cue. Hardwood floors, eat-in kitchen w breakfast bar built for slow mornings & late-night chats while chopping. Main bath so spacious you could practically go bowling in it. Large bed w humungous walk-in closet – wigs, gowns, shoe collection? She can fit it ALL! The lower level has its own separate entrance, & she’s versatile honey! Kitchenette, 2nd livingroom w functional fireplace, full bath, additional bedroom, office & laundry room. ADU potential anyone? There's room for your polycule, hobbies, in-law zone, drum practice, ornery teenager storage? Outside, it only gets better: a fully fenced, 100% private landscaped yard ready for gardening, gathering, or unwinding in your saltwater hot tub under the stars. 2-car garage & 9x20 garden shed — because you deserve space for your projects and your chaos. Solid, spacious, & giving just the right amount of fabulous. Mx. Gloria is ready for you, come pay her a visit! 4th bedroom non-conforming. Buyer to verify square footage & schools.
East Glisan St to North on 108th Ave.
Dwelling Type: Residential
Subdivision: N/A
Year Built: 1954, County: US
East Glisan St to North on 108th Ave.
Listing is courtesy of Portlandia Properties, LLC
Sign in to your account to continue