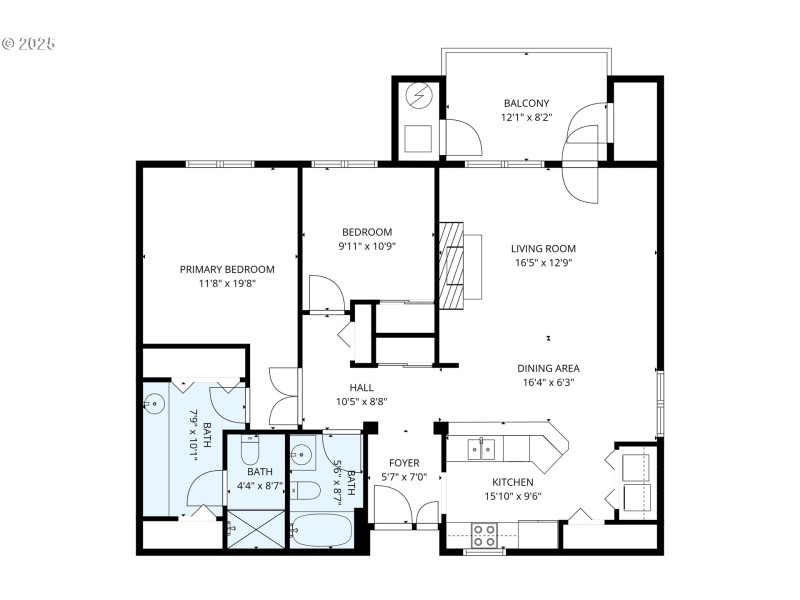
Top-floor end unit Windsor Place II condo ready to be called yours! The building includes secured entry, secured parking garage, and deeded storage, plus a community room with full kitchen, gym/library, balconies with views, puzzle table, and plenty of natural light. Inside this home, an elegant foyer with hardwood floor welcomes you and leads to the open kitchen, which has new vinyl flooring, pantry, stainless steel refrigerator, and deep double kitchen sink. A gas fireplace keeps the living room and dining area cozy. The covered balcony patio with storage closet and architectural flair looks over the courtyard garden. New plush carpeting throughout. Spacious primary bedroom features a bathroom with an expansive vanity and mirror, new vinyl flooring, and step-in shower. Laundry off kitchen for chore convenience. The active Summerplace 55+ community has its own clubhouse with tennis/pickleball, outdoor pool, a stunning ballroom for frequent special events, library, rec rooms, gym, billiards, and onsite management. HOA offers RV parking and storage opportunities. Near Glendoveer Golf & Tennis. Let your next chapter begin at Summerplace!
From 148th: turn E onto Sacramento, turn N onto Knott, park in front of building
Dwelling Type: Residential
Subdivision: Windsor II (Summerplace)
Year Built: 1999, County: US
From 148th: turn E onto Sacramento, turn N onto Knott, park in front of building
Listing is courtesy of eXp Realty, LLC
Sign in to your account to continue