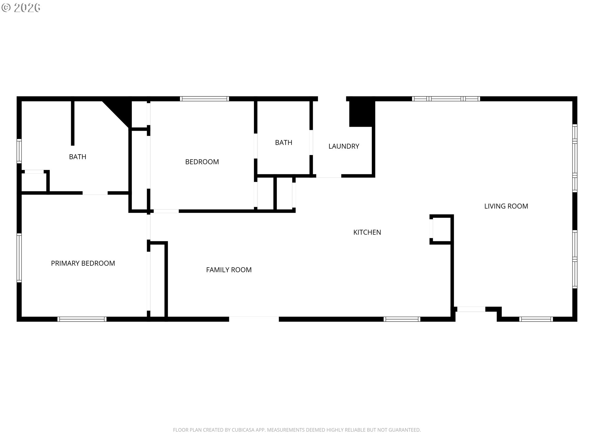
1974 Golden West doublewide in a 55+ community offering 1,464 sq. ft. with 2 bedrooms and 2 bathrooms. This home features a large living room plus a separate family room, giving you plenty of space to spread out. A mini-split heat pump provides efficient heating and cooling, and an 8' x 10' tool shed adds extra storage. The home is a fixer and is being sold in as-is condition, offering a solid opportunity for someone ready to make improvements. Park approval is required. Convenient location near shopping with quick highway access.
Green Acres Rd to 1475 Green Acres Rd
Dwelling Type: Residential
Subdivision: N/A
Year Built: 1974, County: US
Green Acres Rd to 1475 Green Acres Rd
Listing is courtesy of Peloton Real Estate
Sign in to your account to continue