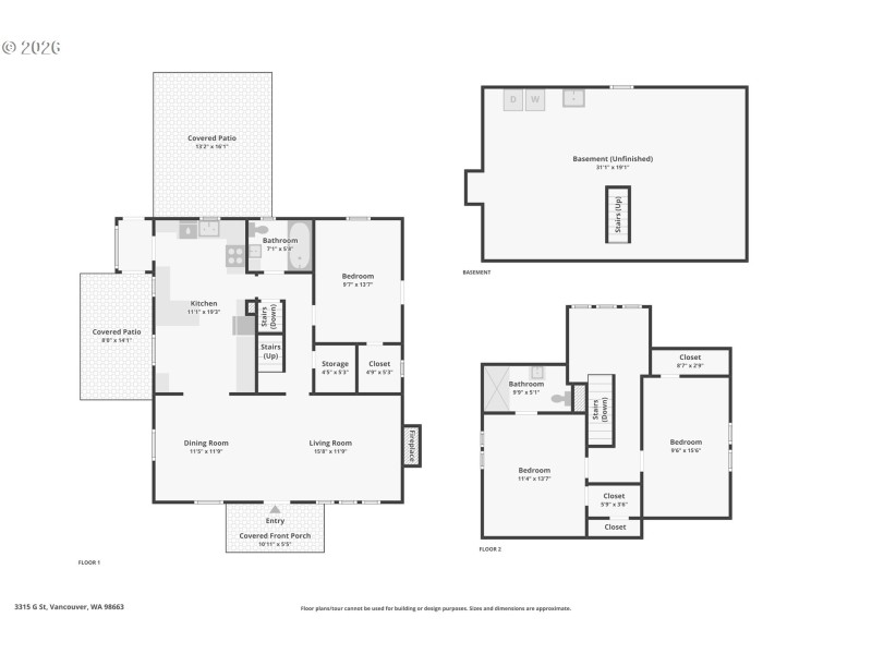
Covered front porch ideal for sitting out welcomes you through a 6-lite leaded glass front entry door. Living room features a gas fireplace with brick surround, mantle, and hearth and flows seamlessly into the dining room. The dining room offers convenient access to the kitchen. The updated breakfast bar stainless kitchen includes a new built-in dishwasher, built-in microwave, new glass cooktop range with double oven/convection, and refrigerator. Granite countertops with tile backsplash are paired with an abundance of soft-close cabinetry, some with pull-outs and glass panes, lazy susan, pantry cabinetry, wine storage, and under-cabinet lighting. Additional features include a reverse osmosis water filtration system, and recessed lighting. The primary en-suite on upper level offers a walk-in closet, bath with a single-sink vanity and tiled shower. Second bedroom on the main includes a walk-in closet, and exterior access. The third bedroom on upper level also features a walk-in closet. The cozy upper-level loft provides bench seating with a window view of the backyard. The unfinished basement on the lower level includes a laundry area with washer, dryer, utility sink, cement floor, and exterior access. The full bath on the main level offers a vessel sink stone countertop vanity, combo soaking tub and shower. Additional interior features include single-panel interior doors throughout, hardwood, tile and vinyl flooring, high baseboards, and updated PEX plumbing and wiring. All appliances remain. The exterior offers a covered front porch, two covered patios, an extended patio, and deck, along with a one-car detached garage. Situated on a landscaped corner lot with sprinklers, the property provides inviting outdoor spaces and practical amenities. Mortgage savings may be available for buyers of this listing.
Main St - East E 33rd St - L G St
Dwelling Type: Residential
Subdivision: N/A
Year Built: 1932, County: US
Main St - East E 33rd St - L G St
Listing is courtesy of Redfin
Sign in to your account to continue