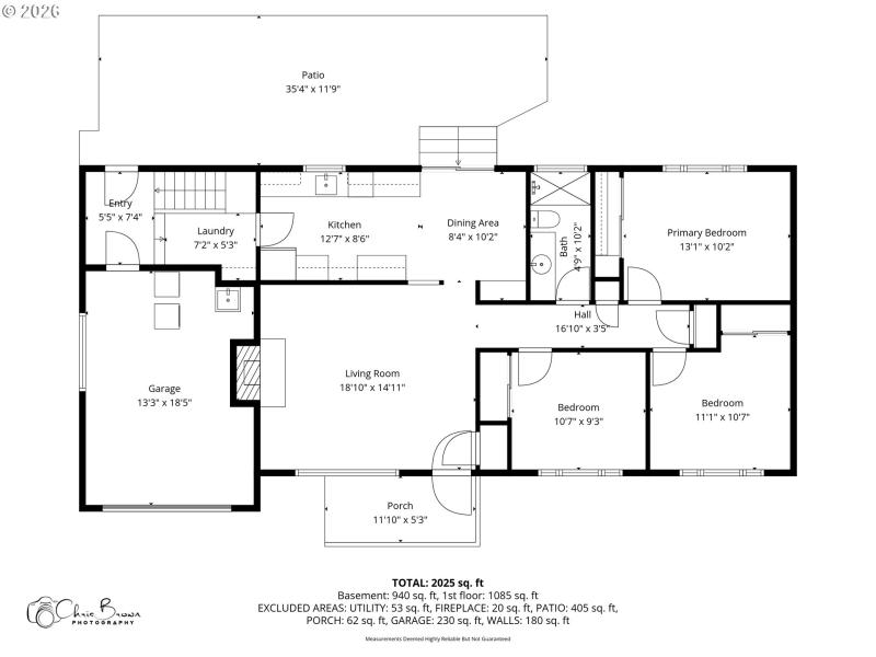
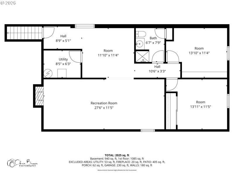
Discover the perfect blend of comfort, character, and value in this classic 1960 single-family home quietly tucked on a cul-de-sac in one of Northeast Portland's most affordable neighborhoods. Solid bones and restored hardwood floors set the tone, while a newly remodeled kitchen brings modern style and function to a home full of warmth. Cozy up to the gas fireplace upstairs on cool Portland evenings, or gather around the wood burning fireplace in the lower level for the ultimate retreat feel. The full basement impresses with two additional bonus rooms — non-conforming bedrooms ideal as a home office, den, guest space, or storage — giving you the flexibility to live and work exactly how you want. Step outside to a fully fenced, spacious backyard with mature landscaping — your own private sanctuary for gardening, relaxing, or entertaining on a summer evening. Ample natural light, an attached garage, and easy access to parks, local dining, and transit complete this rare package. Move-in ready with room to make it truly yours. [Home Energy Score = 4. HES Report at https://rpt.greenbuildingregistry.com/hes/OR10246709]
North on 102nd, right on Knott St, right on 104th
Dwelling Type: Residential
Subdivision: PARKROSE HEIGHTS
Year Built: 1960, County: US
North on 102nd, right on Knott St, right on 104th
Listing is courtesy of MORE Realty
Sign in to your account to continue