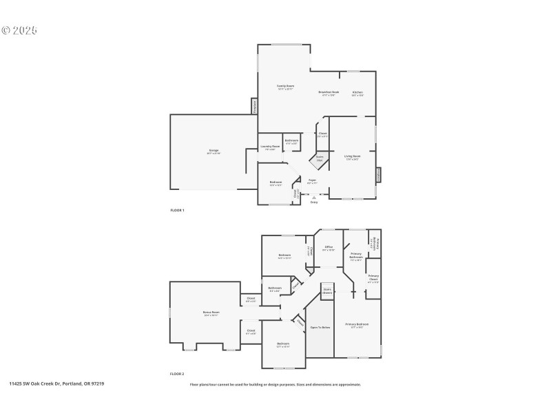
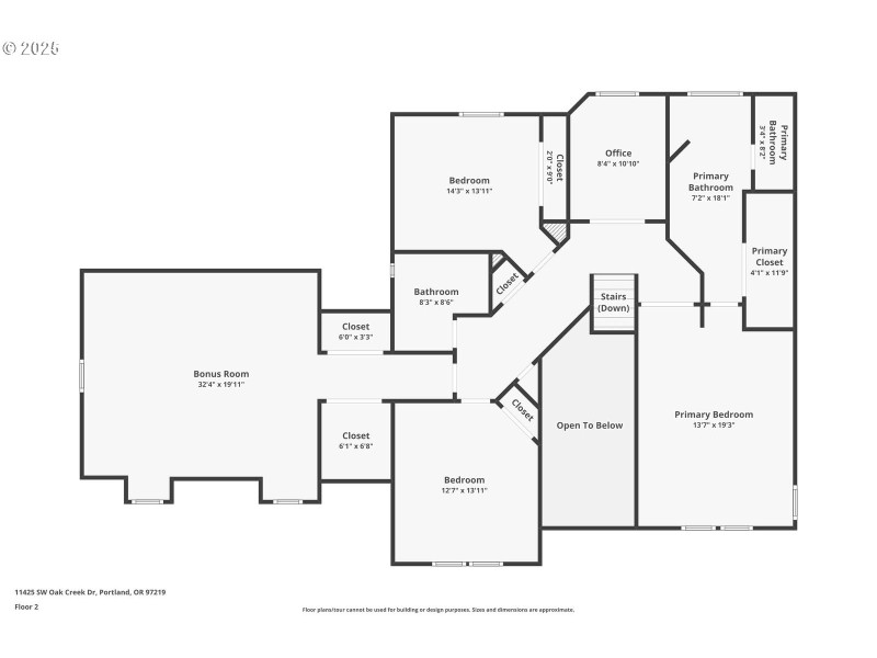
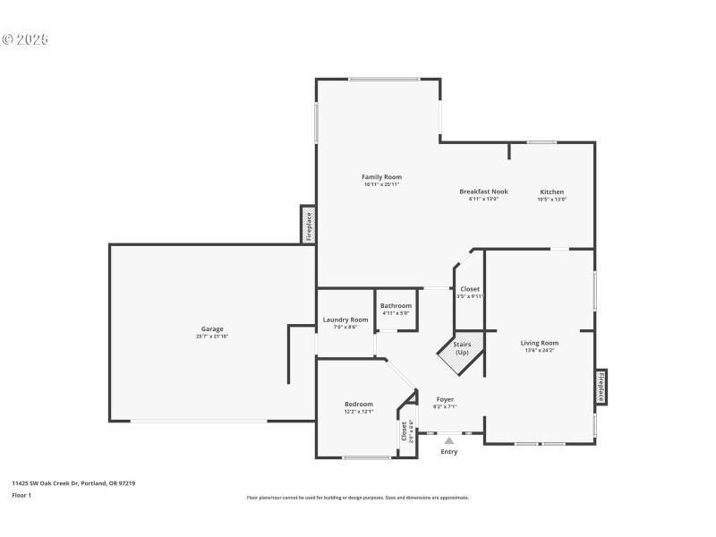
Big Price reduction to sell! A newly remodeled 2 story with 4 bedrooms and 2 1/2 bath. Large dinning room with formal living room, oversized family room plus a bonus room. New roof, updated kitchen, bathrooms and floors. Gas appliances and a large deck in the back for entertaining and your enjoyment. 5 minutes to Lewis and Clark College, Portland Community College and about 15 minutes to downtown Portland. All located in a cul-de-sac in a quiet neighborhood.
Boones Ferry Rd. to Stephenson, to 27th, to Oak Creek Estate
Dwelling Type: Residential
Subdivision: N/A
Year Built: 1991, County: US
Boones Ferry Rd. to Stephenson, to 27th, to Oak Creek Estate
Listing is courtesy of All Professionals Real Estate