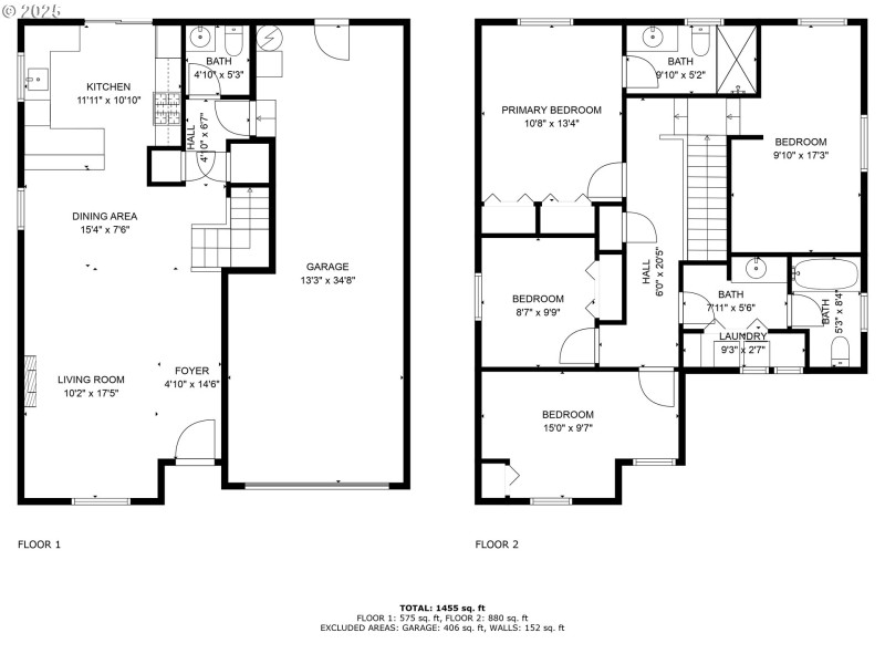
Welcome to Seaside! Whether a primary home or a vacation retreat, this is a fantastic value for the location less than 1/4 mile from the ocean and just blocks from all of the entertainment that Downtown Seaside has to offer! Flag lot takes you well off the road and into a quiet and fairly private setting. Enter the living room with a gas fireplace, Dining area and an eating bar to enjoy simple meals before headed to the beach. 3 bedrooms upstairs with a 4th flex space for a bed or office or entertainment space at the top of the stairs. Sold fully furnished so that you can spend your first weekend in your new home without much more than a suitcase! Large deck in the back for entertaining or just lounging. This is a great opportunity to own a charming Seaside property.
From Hwy 101, go W on 12th, South on Necanicum Ave. Drive on Right - Flag Lot.
Dwelling Type: Residential
Subdivision: N/A
Year Built: 2004, County: US
From Hwy 101, go W on 12th, South on Necanicum Ave. Drive on Right - Flag Lot.
Listing is courtesy of Soldera Properties, Inc
Sign in to your account to continue