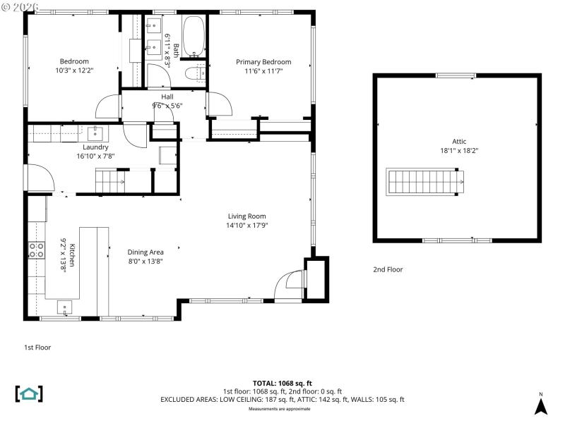
Welcome to this charming 1950’s bungalow that has been lovingly cared for and thoughtfully updated while preserving the character that makes it so special. From the moment you step inside, the original hardwood floors and natural light create a warm, welcoming feel throughout the 2 bed, 1 bath home. The fully remodeled kitchen features quartz countertops, updated cabinetry, stainless steel appliances, and tile flooring. The bathroom has also been tastefully updated with a double-sink vanity, tiled shower tub, and tile flooring. Just off the kitchen, the remodeled laundry room adds extra convenience with a butcher block countertop and utility sink, also serving as a mudroom being located off the backyard access. Upstairs, the bonus attic space with updated LVP flooring offers great flexibility. Whether you are needing a home office, guest space or creative studio, this space can easily transform to your needs. Outside, you’ll find a spacious, flat, and fully fenced yard surrounded by mature and lush landscaping that blooms vibrant colors each Spring, with convenient irrigation already installed. The detached one-car garage, accessed from the back alley, works well as a garage, workshop, or additional storage. Other recent improvements include a new 2025 roof, plumbing, sewer lines, electrical updates, and more! All in a prime location near local schools, parks, and everyday amenities. With its timeless charm, thoughtful updates, and major improvements already done, this move-in ready bungalow is ready for you to step in and call it your home.
Corner of Bridge St and W 15th St
Dwelling Type: Residential
Subdivision: N/A
Year Built: 1952, County: US
Corner of Bridge St and W 15th St
Listing is courtesy of Copper West Real Estate
Sign in to your account to continue