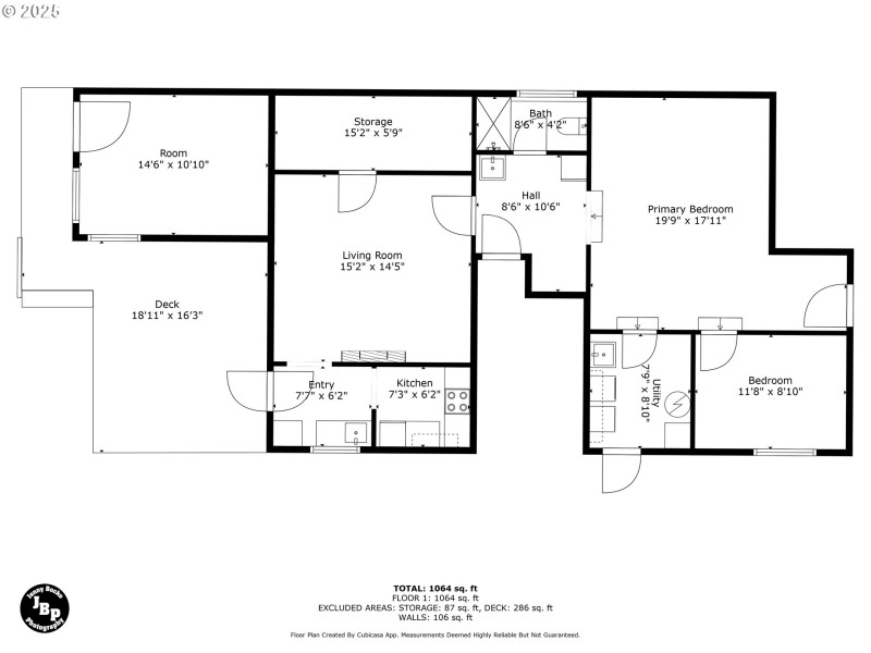
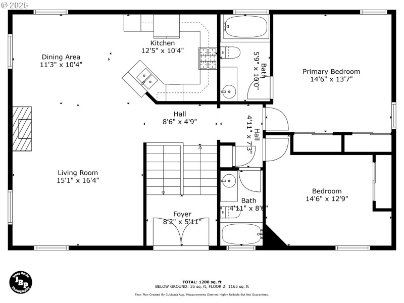
***price improvement*** Rare opportunity outside the tsunami zone with panoramic views of the Siletz River’s winding bends, less than a mile from the ocean. Tucked into a forested 2.83-acre setting and backing to protected green space, this thoughtfully designed coastal retreat offers the best of both worlds—privacy and proximity. Just 0.7 miles to the beach, dining, and central Lincoln City, the home provides a peaceful escape without sacrificing convenience.With 4 bedrooms, 3 bathrooms, and interior stairs connecting both levels, the layout offers excellent flexibility for full-home use or duplex-style living. The upper level features an open-concept kitchen, dining, and living area filled with natural light, plus a spacious primary suite with jetted tub and a murphy bed in the second bedroom.The lower level includes three separate exterior entrances, a kitchenette, murphy bed and tables, and a large storage room that could function as a walk-in closet or storage space. Two additional outbuildings provide extra space with lots of utility. All furniture is just two years old, and the home can be sold fully furnished if desired. Whether you're looking for a personal retreat, multi-generational setup, or income-producing coastal investment, this one-of-a-kind property delivers rare versatility in a serene, tree-lined setting with captivating river views.
Hwy 101 south to S. Schooner Creek Rd. Past SE 51st St driveway will be on the left.
Dwelling Type: Residential
Subdivision: N/A
Year Built: 2006, County: US
Hwy 101 south to S. Schooner Creek Rd. Past SE 51st St driveway will be on the left.
Listing is courtesy of Keller Williams Realty Eugene and Springfield
Sign in to your account to continue