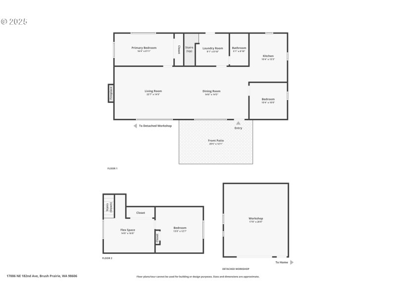
Private acreage, beautiful landscaping, and full RV hookups designed for flexibility and country living. Set on 2.06 peaceful acres along Morgan Creek in a desirable close-in rural setting, this updated ranch offers privacy and space while remaining convenient to nearby shopping and amenities. The light-filled interior features large windows and a floor-to-ceiling stone fireplace with efficient insert. Interior updates include refreshed bath and laundry spaces, new upstairs flooring, mini-split heating and cooling, and a flexible upstairs bedroom with bonus sitting or office space.The outdoor setting is a true highlight, offering lush lawns, curated shrubs, colorful plantings, and a thoughtful mix of fruiting and ornamental trees including apple, pear, fig, willow, dogwood, and cherry. The property also includes a large metal shop, multiple storage sheds, greenhouse, dog run, and a large fenced garden.A full RV pad with water, sewer, and power adds exceptional versatility for guests or extended use. Enjoy evenings by the fire pit or unwind in the saltwater hot tub. Recent improvements include a newer septic system, rebuilt chimney, fresh exterior paint, newer front fencing, permanent exterior lighting, and electronic gated access on a private drive.
NE 182nd Ave
Dwelling Type: Residential
Subdivision: N/A
Year Built: 1952, County: US
NE 182nd Ave
Listing is courtesy of Opt
Sign in to your account to continue