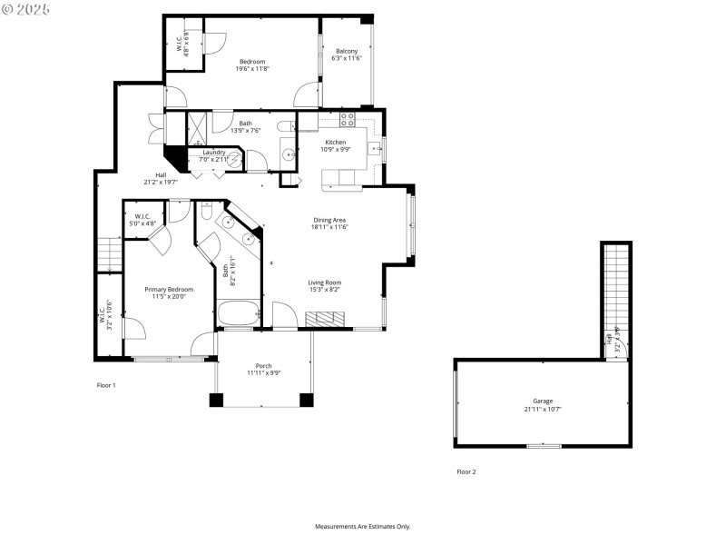
Beautiful 1-level condo in the heart of Wilsonville! Great room floorplan with gas fireplace, 2 private patios. Kitchen with hardwood floors, granite counters, stainless appliances, and pantry. Primary Suite with 2 walk-in closets, double sinks, soaking tub. 2 full bathrooms, attached garage, plenty of storage. Each bedroom with their own private balcony. Walk to restaurants, shopping, the park, the library & more!
I-5 - Exit 283 - East on Wilsonville Rd - right on Rebekah to #10
Dwelling Type: Residential
Subdivision: Town Center
Year Built: 2006, County: US
I-5 - Exit 283 - East on Wilsonville Rd - right on Rebekah to #10
Listing is courtesy of Berkshire Hathaway HomeServices NW Real Estate
Sign in to your account to continue