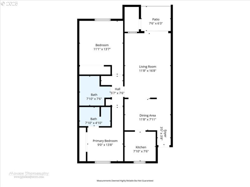
Lovingly updated condo with a cute vintage style! Nestled in a quiet nook of the community, this delightful 2-bedroom home features a nearly brand-new exterior envelope thanks to a well cared for community. A nice ground-level unit with a reserved parking space just steps from the entry. It boasts a private back patio that opens directly to a lush lawn and community green space—an ideal spot for morning coffee, fresh air, and quiet relaxation. Inside, enjoy the ease of two in-unit laundry options, a bedroom with a convenient half-bath ensuite, plus a full bathroom. Large windows invite natural light and offer tranquil views of the greenspace and shimmering pond. Updated flooring and paint throughout. The HOA has completed extensive exterior renovations including new siding, windows, doors, paint, paving, stairwells, and more. Your dues cover water, sewer, garbage, exterior maintenance, and access to fantastic amenities—pool, recreation room, tennis courts, walking trails, and scenic pond views.Perfectly situated minutes from tons of amenities-Market of Choice, Home Depot, Grand Central Bakery, Laughing planet, Hwy 217 & 26, and the MAX line, this home offers low-maintenance living in a peaceful natural setting with unbeatable convenience.
Over the bridge on your left, just past the pond
Dwelling Type: Residential
Subdivision: N/A
Year Built: 1979, County: US
Over the bridge on your left, just past the pond
Listing is courtesy of Keller Williams Realty Professionals
Sign in to your account to continue