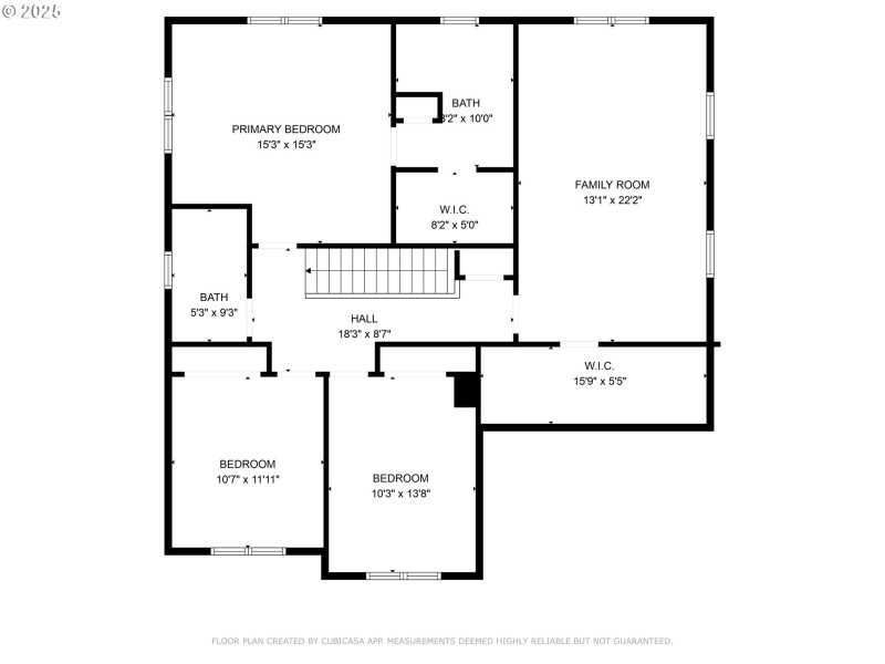
Beautiful custom-built 3+ bedroom, 2.5 bathroom house in one of Molalla’s sweetest neighborhoods. The Finney’s Landing neighborhood is known for its quality craftsmanship and many standard upgrades. These homes look and feel different. Built in 2014, this house has a cultured stone arched entryway welcoming you to a spacious front porch, perfect for seasonal decorating. The main level features a dedicated entryway/foyer, 9-foot ceilings throughout, gas fireplace and hardwood floors in the entry, kitchen and dining area. The well-appointed kitchen includes granite countertops, a large island, stainless steel appliances, gas range, and a walk-in pantry. Get cozy in the living room with a gas fireplace and beautiful custom built-ins. Upstairs, the vaulted bonus room provides flexible space—ideal for a media room, home office, playroom, or 4th bedroom. The oversized owner's suite offers vaulted ceilings with an ensuite bathroom and walk-in closet. Outside, enjoy a covered patio, fully fenced backyard, landscaping, sprinklers, RV parking and a multi-purpose storage shed. Just blocks from Clark Park, coffee shops, Molalla Aquatic Center, shopping, Buckaroo Grounds and the high school. This home has the space, comfort, and upgraded features you're looking for!
Hwy 211 to N Cole. Left on Patrol St, Right on Finneys Ave.
Dwelling Type: Residential
Subdivision: Finney's Landing
Year Built: 2014, County: US
Hwy 211 to N Cole. Left on Patrol St, Right on Finneys Ave.
Listing is courtesy of RE/MAX HomeSource