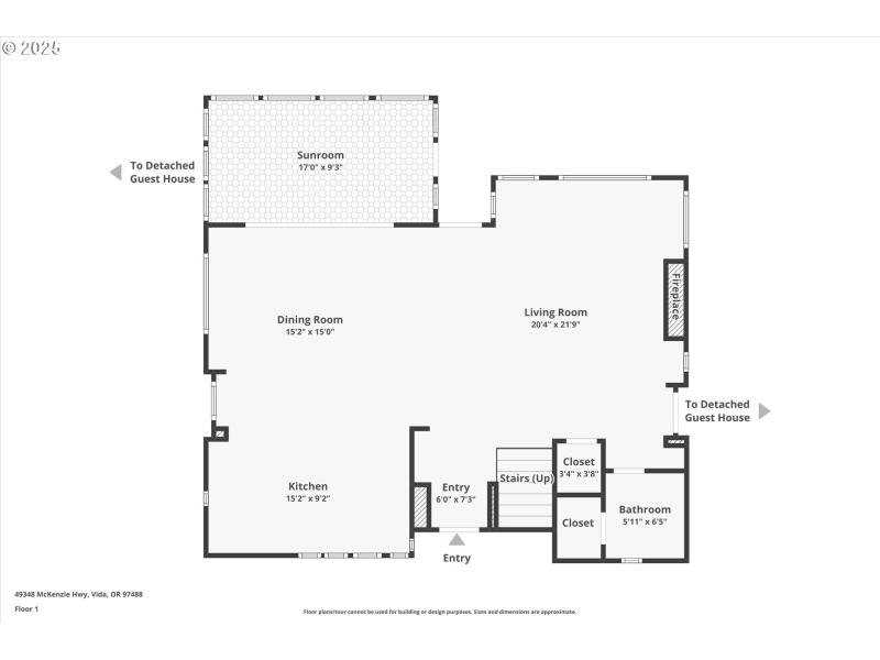
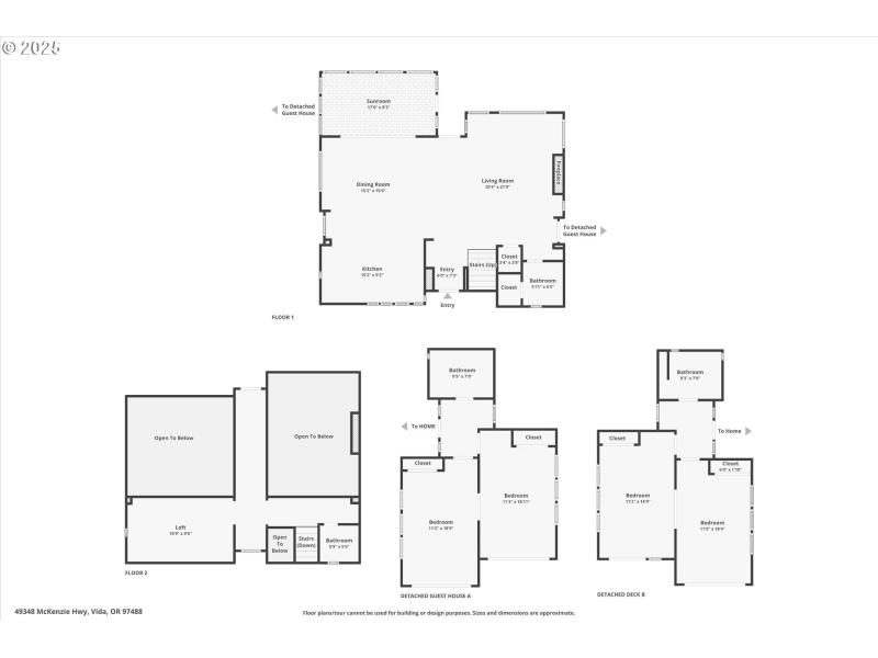
Featured in Oregon Home Magazine, this extraordinary riverfront retreat along the McKenzie River is a masterclass in thoughtful design, sustainability, and heartfelt legacy. Custom-designed and inspired by the owner’s multi-generational connection to the land, this one-of-a-kind home blends architecture, artistry, and Oregon’s natural beauty.Instead of a traditional floorplan, the home unfolds in a unique “pod” design—three detached structures that provide the perfect balance of togetherness and privacy. Each sleeping pod features spa-like bathrooms with sunken concrete tubs, serene views of Eagle Rock or the surrounding old-growth Douglas firs, and access to private decks nestled in the trees.At the heart of the home is the central pod: a dramatic, light-filled gathering space with a gourmet kitchen, spacious dining area, and inviting living room. A custom window seat captures breathtaking views of Eagle Rock, while a screened porch and catwalk-style deck create a seamless connection to the outdoors.Sustainable features include rainwater collection cisterns, operable windows for passive cooling, recycled PaperStone countertops, and thoughtful site design that preserves mature trees. Salvaged beams from the original A-frame cabin have been lovingly repurposed into the new structure, honoring the past while embracing the future.Whether as a primary residence or a vacation haven, this home offers a rare opportunity to experience timeless design, natural serenity, and enduring connection to one of Oregon’s most scenic rivers.
McKenzie Hwy to approx MP 34
Dwelling Type: Residential
Subdivision: N/A
Year Built: 2009, County: US
McKenzie Hwy to approx MP 34
Listing is courtesy of Willhite Real Estate
Sign in to your account to continue