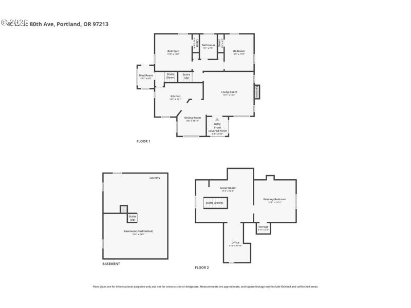
NEW PRICE on this remodeled 1928 English-style home that strikes the perfect balance of classic character while being completely updated. The kitchen and bathroom have both been beautifully reimagined, with stainless steel appliances and high-end finishes, and the entire home is ready to go from day one. The layout has an easy living feel you will appreciate. Two bedrooms on the main level and a private primary upstairs, complete with additional space that works well as an office, creative setup, or to provide just a little separation when you need it. Out back, the yard really opens things up. It’s large, private, and framed by mature trees with plenty of room to host, unwind, or spend time outside without feeling on top of your neighbors. 96% efficient furnace. Newer roof and electrical panels. Basement with high ceilings and side entrance with tons of options for finishing! All set on a corner lot in thriving Roseway close to parks, food, and everyday spots. Simple, dialed-in, and a house that really feels like home. [Home Energy Score = 4. HES Report at https://rpt.greenbuildingregistry.com/hes/OR10086842]
82nd and NE Sandy, turn right onto NE 80th
Dwelling Type: Residential
Subdivision: ROSEWAY
Year Built: 1928, County: US
82nd and NE Sandy, turn right onto NE 80th
Listing is courtesy of Cascade Hasson Sotheby's International Realty
Sign in to your account to continue