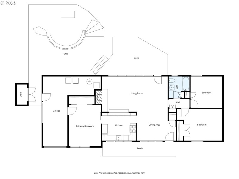
Set on a quiet corner lot in Portland’s Hillsdale neighborhood, this single-level mid-century modern home celebrates light, simplicity, and connection to the outdoors. Floor-to-ceiling windows line both the north and south sides, filling the interior with natural light and framing views of the surrounding greenery. Inside, fresh paint and new carpet bring a clean, updated feel while honoring the home’s mid-century character. The layout features three bedrooms and one bath, with potential to add a second bathroom. A freshly stained deck extends the living space outdoors, perfect for morning coffee, gatherings with friends, or quiet moments surrounded by trees. The large, private yard includes a fire pit, two driveways, and a detached flex space with a skylight, ideal for a yoga studio, art space, or home office. Located in one of Portland’s most desirable neighborhoods with top-rated schools, including Rieke Elementary.
Dosch, East on Boundary, North on 26th, Dr East on Mitchell
Dwelling Type: Residential
Subdivision: HILLSDALE
Year Built: 1949, County: US
Dosch, East on Boundary, North on 26th, Dr East on Mitchell
Listing is courtesy of eXp Realty, LLC