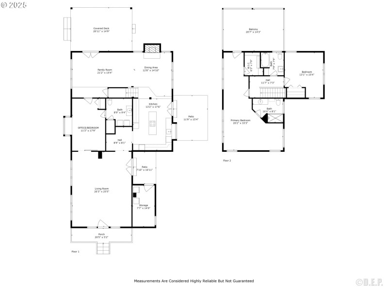
Discover this 4-bedroom, 3-bathroom home on 5.5 acres in Vernonia, where peaceful country living meets modern convenience just 30 minutes to Portland and 45 minutes to the coast.Enter through the welcoming covered deck into a spacious great room featuring exposed beams, hardwood floors, and a stone woodstove. Large windows fill the space with natural light while showcasing serene creek views.The well-appointed kitchen includes stainless steel appliances, granite countertops, and a large island, connecting easily to an outdoor dining area perfect for alfresco entertaining. The dining room has its own fireplace for cozy family gatherings.The main level provides a flexible bedroom or office with powder room, while upstairs you'll find the primary suite with full bathroom, walk in closet, and a private deck. two additional bedrooms and full bathroom finish the upstairs.A standout feature is the custom ADU—a comfortable one-level residence with granite counters, hickory floors, propane fireplace, and complete amenities including a washer & dryer. The beautifully restored early 1900s cabin offers additional guest quarters with authentic character.Outdoor amenities include established gardens, productive greenhouse, secure chicken coop, and workshop with 220 power. Miles of private trails provide riding and hiking opportunities, while the wood-fired sauna offers relaxation after a long day.This country estate combines modern comfort with sustainable living, featuring merchantable timber, fruit trees, and extensive storage buildings. The property offers genuine country living for those who appreciate quality, privacy, and natural beauty. Additional 2.88 acres available.
Hwy 47 to North on State St. approx 3 miles. Property on the right.
Dwelling Type: Residential
Subdivision: N/A
Year Built: 1925, County: US
Hwy 47 to North on State St. approx 3 miles. Property on the right.
Listing is courtesy of Soldera Properties, Inc