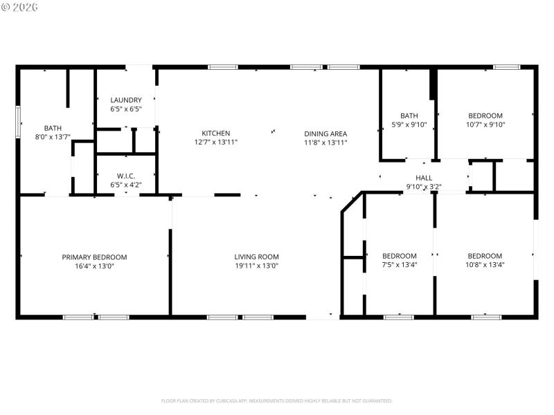
TIGARD OREGON; Welcome to this better than new, beautifully maintained 2018 double-wide home in the desirable 55+ community of Royal Villas. One of the few homes in the community featuring fencing for added privacy, this property offers comfort, flexibility, and upgrades throughout. Enjoy convenient access to nearby highways, along with a variety of local shops, restaurants, and everyday services just minutes away. Inside, the open-concept living area creates a bright and welcoming space perfect for relaxing or entertaining. The kitchen features an breakfast bar and flows seamlessly into the main living area. The thoughtful floor plan places the primary suite on one end of the home, complete with a walk-in closet and private bathroom with walk-in shower, providing a peaceful retreat. A third bedroom flex space offers versatility—ideal for a home office, arts and crafts studio, workout room, workout space, or guest room. Step outside to the deck, a perfect spot for morning coffee or afternoon tea. The home also features covered carport parking and a large handy shed for extra storage. Residents of Royal Villa enjoy access to wonderful community amenities including a clubhouse, swimming pool, putting green, pickleball court and shuffleboard, making it easy to stay active and social in this well-established 55+ community. A fantastic opportunity for comfortable, low-maintenance living in a welcoming neighborhood. Some furnishings can stay. Primary bedroom furnishings excluded.
Pacific Hwy W, turn R onto Royal Villas, cul-de-sac at back of neighborhood
Dwelling Type: Residential
Subdivision: ROYAL VILLAS
Year Built: 2018, County: US
Pacific Hwy W, turn R onto Royal Villas, cul-de-sac at back of neighborhood
Listing is courtesy of Knipe Realty ERA Powered
Sign in to your account to continue