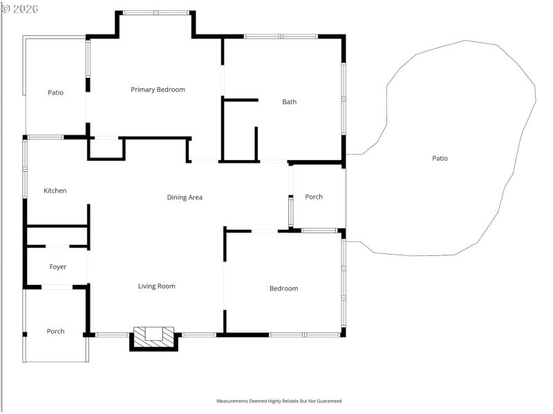
If you’re looking for a private retreat near the Sandy River on nearly a half acre, this updated 1925 Craftsman delivers Mt. Hood charm with modern comfort. Thoughtfully restored by a local craftsman, this 2 bedroom, 1 bath cabin is ideal as a full-time residence, second home, or investment property. Step inside to an impressive great room featuring a stone fireplace, soaring vaulted wood ceilings with exposed beams, and restored paned windows that fill the space with natural light. The open living and dining area flows easily into the kitchen, complete with stainless steel appliances and a gas range. Wood floors run throughout the home.The spacious bathroom offers a tiled walk-in shower and integrated laundry area. The primary bedroom opens to a private deck, while the second bedroom, just off the living room, features barn doors and bunk beds for guests.Previously used as a short-term rental, the home is being sold furnished. Shared well and a newer septic system (installed approximately 5 years ago). Bonus outbuilding/shed for storage. Outdoor living shines with multiple gathering spaces, including two stone patios and a large fire ring—perfect for summer evenings. The backyard offers room for games and relaxation, with views toward Devil’s Backbone Ridge along the historic Barlow Trail. Enjoy the sound of the Sandy River just a short distance away.For outdoor enthusiasts, the Sandy Ridge Trail System with 17 miles of biking trails is just minutes away. Convenient access to Highway 26 puts you on the slopes in about 20 minutes, with hiking, rivers, and Mt. Hood National Forest all nearby. Groceries and restaurants are approximately 5 minutes away, and PDX is under an hour—making this an ideal mountain escape.
Hwy 26 East entrance to Sleepy Hollow Dr. Next driveway past Alt Road
Dwelling Type: Residential
Subdivision: N/A
Year Built: 1925, County: US
Hwy 26 East entrance to Sleepy Hollow Dr. Next driveway past Alt Road
Listing is courtesy of Premiere Property Group LLC
Sign in to your account to continue