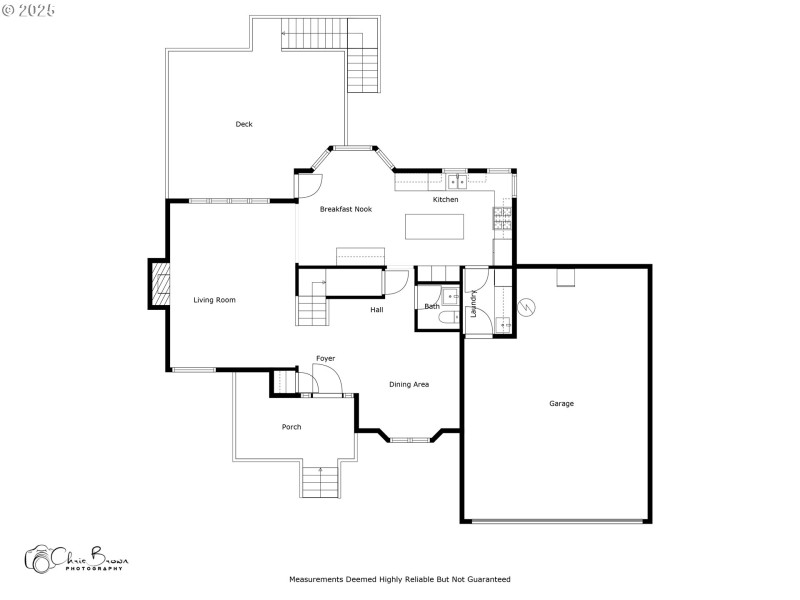
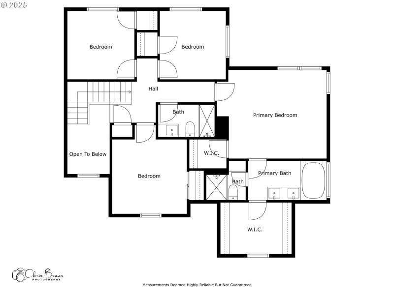
Welcome to this well-maintained 2000sqft 4 bedroom, 2.5 bath home in Beaverton’s desirable Cooper Mountain neighborhood. It features hardwood floors, vaulted ceilings and spacious living room with a newer gas fireplace insert. The upstairs primary suite includes heated tile floors, a jetted tub, dual walk-in closets, and a skylit shower. Bathrooms have been tastefully updated throughout.Situated on a quiet street, this quarter-acre lot backs to Northridge Woods Natural Area for added privacy and scenic views. Enjoy private outdoor living on the new deck with a gas hookup. Just minutes from parks, shopping, great schools and major employers like Nike and Intel. Call today to schedule private showing!
185th, W on Rigert, R on 186th, L on Kelly View, R on 189th
Dwelling Type: Residential
Subdivision: N/A
Year Built: 1993, County: US
185th, W on Rigert, R on 186th, L on Kelly View, R on 189th
Listing is courtesy of MORE Realty