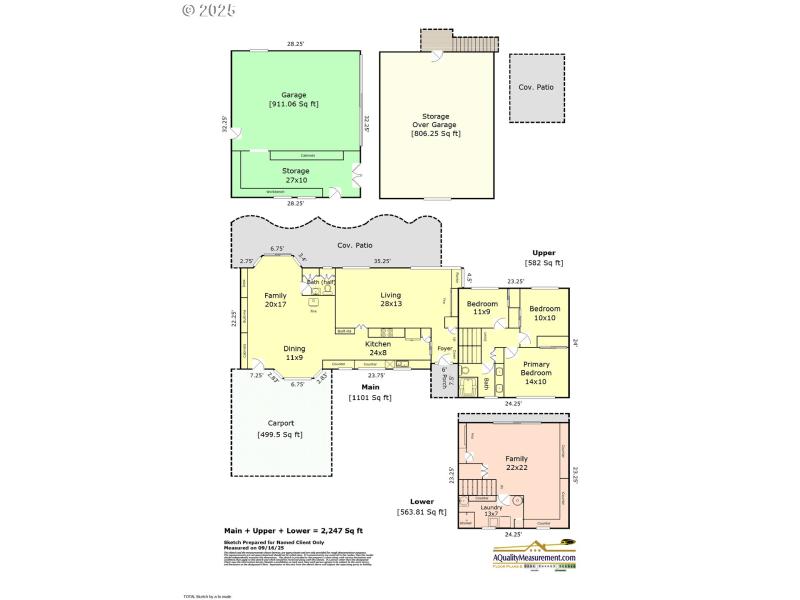
Welcome to 5615 E Main St! Tucked away at the end of a long private driveway, this Hidden Creek oasis sits on nearly one acre of flat, private land. The property’s unique layout includes a second driveway at the back, leading directly to a spacious 28’x32’ shop with concrete floors and a large storage loft above. This setup offers plenty of space for RV or boat parking, as well as the potential to run a small business with convenient access from the secondary drive.This original-owner home retains many of its classic features while offering exciting opportunities to make it your own. Imagine opening the kitchen to the living room to create a bright, modern gathering space, or reimagining the layout with an expansive primary suite on the lower level, complete with a private patio retreat. The backyard already park-like, with mature landscaping and an irrigation well to keep it lush year-round.The location is hard to beat—just a short stroll to Hidden Creek Park with pickleball and basketball courts, soccer fields, a playground, and the Hidden Creek Rec Center. You’ll also enjoy nearby local shops, easy access to Orenco Station, and a quick commute to the High-Tech Corridor.Come explore this special property and see the possibilities for yourself! [Home Energy Score = 2. HES Report at https://rpt.greenbuildingregistry.com/hes/OR10241918] 
 55th Ave & Main St 
 
                                                        Dwelling Type: Residential 
                            Subdivision: N/A 
                            Year Built: 1962, County: US 
                            55th Ave & Main St
                        
Listing is courtesy of Genesis Realty
