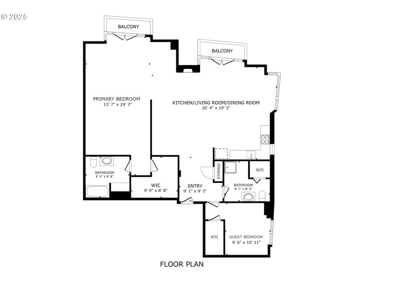
Harmonious design, natural elements, with expansive views of Tanner Springs Park and the city create a true opportunity for the discerning buyer. This corner two-bedroom loft residence blends open, airy rooms with thoughtfully defined spaces, offering both elegance and function. Floor-to-ceiling windows flood the home with natural light, framing inviting outlooks in every direction.Earthy tones and Zen-inspired details—such as a custom track lighting with Capiz shell fixture, stained and sealed concrete floors, and custom linen window encasements—bring warmth and texture, echoing the beauty of the adjacent eco-park. Dual European-style balconies with French doors extend from both the main living area and primary suite, connecting indoor comfort with fresh outdoor living.The floor plan features exceptional storage, including walk-in closets in both bedrooms and a coveted kitchen pantry. Anchoring the living room, a gas fireplace with custom surround adds both style and comfort. The chef’s kitchen includes a Jenn Air stainless appliance package, granite counters, and tailored cabinetry. Flexible in design, the spacious primary suite accommodates a lounge or office area, while the second bedroom easily fits a full or queen bed.Additional highlights include high ceilings, expansive closet organizers, specially designed shelving in the primary bath, two deeded parking spaces, and a same-level storage unit.Streetcar Lofts, designed by award-winning architect Robert S. Leeb, is known for the iconic “Go By Streetcar” sign. Residents enjoy curated amenities including a two-level fitness room, landscaped courtyard, and private community room. Ideally positioned in the North Pearl, shopping, dining, and transportation are just steps away.
NW 12th and Marshall
Dwelling Type: Residential
Subdivision: PEARL DISTRICT/STREETCAR LOFTS
Year Built: 2001, County: US
NW 12th and Marshall
Listing is courtesy of Where, Inc