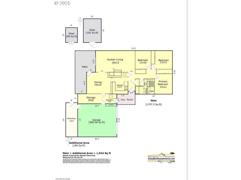
Beautifully maintained 3-bedroom, 2-bath single-level home in the sought-after Jan Ree neighborhood. Built in 1963, this charming ranch features original hardwood floors, updated lighting throughout, and spacious rooms filled with natural light. Enjoy a cozy living room with a fireplace and slider to the covered patio—perfect for relaxing or entertaining. The dining area offers generous space for gatherings, and the functional kitchen layout with eating bar provides everyday convenience. The utility room includes extra workspace, ideal for a home office, hobby area, or additional storage. Oversized 2-car garage comes with a separate workshop with interior and exterior access, plus 220V wiring, great for projects or additional equipment needs. Set on over a quarter-acre lot on a lovely tree-lined street, there’s ample space for gardening, play, or outdoor entertaining. This home also features a newer roof and exterior paint for added peace of mind. A rare combination of character, comfort, and convenience—don’t miss this Jan Ree gem!
Lancaster Dr NE to E on Ward Dr NE - Cross St 42nd Ave
Dwelling Type: Residential
Subdivision: Jan Ree Gardens
Year Built: 1963, County: US
Lancaster Dr NE to E on Ward Dr NE - Cross St 42nd Ave
Listing is courtesy of Engel & Volkers West Portland
Sign in to your account to continue