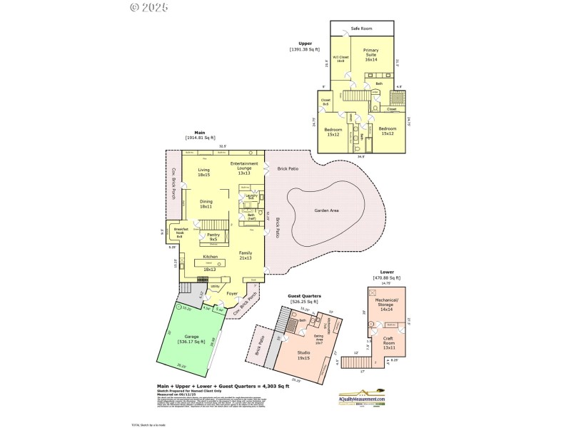
Sun-dappled garden "rooms" and meandering paver patios & paths set the stage for this 2006 rebuilt Lake Oswego icon. Timeless styling with top shelf quality "heart-of-the-home" kitchen featuring large butcher block prep island, soap stone countertops, Wolf range with double ovens, Subzero side by side refrigerator/freezer, spacious walk-in pantry, and sunlit built-in banquette. Furniture quality built-ins at every turn including dining room serving buffet, family room office central, living room fireplace cabinets and oh, the adjacent entertainment "lounge" wet bar equipped with second dishwasher and Subzero wine/beverage refrigerators! French doors at throughout open to picturesque outdoor spaces including covered porch, patios, fire pit and epic raised garden beds. Guest will revel in the private "apartment" with exterior entry, Murphy bed, kitchenette and spa-like bath. Newer whole house generator keeps you cozy and comfortable during winter months and the handy location puts the charming restaurants, boutiques, wine tasting rooms and Farmers Market of Lake Oswego Village at your fingertips. Nearby golf, the trails of iconic Tryon Creek State Park and top-rated Lake Oswego Schools round out this incredible offering.
Country Club, north on Iron Mountain
Dwelling Type: Residential
Subdivision: Forest Hills/Country Club
Year Built: 2006, County: US
Country Club, north on Iron Mountain
Listing is courtesy of Cascade Hasson Sotheby's International Realty