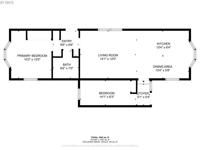
This beautifully updated 1968 single-wide manufactured home offers 1 bedroom, 1 bath, plus a rebuilt 20' x 8' (160 sq ft) addition that now features a fully insulated entryway and a bonus room with closet and baseboard heat. Freshly painted inside and out, with new laminate flooring throughout, new windows, outlets, and fixtures. Kitchen includes a range and brand-new refrigerator. Enjoy bay windows in both the kitchen and bedroom, covered front patio, and back patio with raised garden beds. A carport with storage shed adds convenience. Located next to the RV/boat storage area, this home enjoys added privacy with only one direct neighbor. Life in Chalet Village is all about community and ease. Residents enjoy a spacious recreation center with a TV Lounge, fully equipped community kitchen, dining hall, and pool tables—ideal for gatherings with friends and neighbors. Relax in the sauna, cool off in the seasonal pool, or simply enjoy the quiet surroundings of this well-kept neighborhood. On-site staff, pet-friendly policies, and a warm, welcoming atmosphere make it an excellent place to call home. Conveniently located near shopping, restaurants, and entertainment, Chalet Village offers the perfect blend of tranquility and accessibility. Space rent is $1,015 per month, and all prospective buyers must be approved by the park. Don’t miss this opportunity to own a bright, modern home in a quiet community designed for the lifestyle you deserve!
E or W on Main St, S on S 54th St, L into park, First L, Destination is on L
Dwelling Type: Residential
Subdivision: N/A
Year Built: 1968, County: US
E or W on Main St, S on S 54th St, L into park, First L, Destination is on L
Listing is courtesy of Works Real Estate