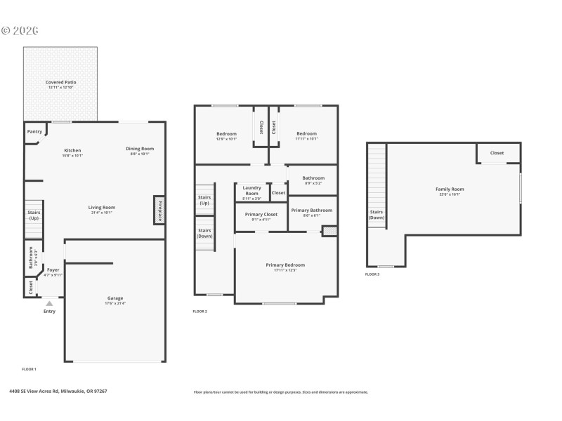
A beautiful craftsman located on a fully fenced 1/4 acre filled with plum, pear, peach & apple trees. Abundance of privacy & quiet neighbors, you can sit on the back patio, or the upper terrace and enjoy some peace and quiet. Sitting 3 stories high, this home has room for everyone. Primary en suite and 2 bedrooms sit on the 2nd story, while the 3rd floor can be a 4th bedroom, bonus room, play room or 2nd living room. Engineered hardwoods throughout the main floor with gas and stainless steel appliances. This Gold Certified home is energy efficient, has a tankless water heater and HES Score of 9/10. Carpets were professionally cleaned, home professionally cleaned, powerwashed, gutters cleaned & roof cleaned prior to listing to make moving in a breeze. 0.5 miles to Concord Park & Community Center, brand new with playgrounds, walking paths, splash pad and more! 3 miles to Downtown Milwaukie- you will find Pfreim Brewery, tons of restaurants, food carts and the brand new 1847 Food Pod (coming soon!)Listing agents are related to the seller. HES Score 9/10- https://rpt.greenbuildingregistry.com/hes/OR10175834 [Home Energy Score = 9. HES Report at https://rpt.greenbuildingregistry.com/hes/OR10175834]
Thiessen to Hill Rd to View Acres Rd
Dwelling Type: Residential
Subdivision: N/A
Year Built: 2016, County: US
Thiessen to Hill Rd to View Acres Rd
Listing is courtesy of Premiere Property Group, LLC
Sign in to your account to continue