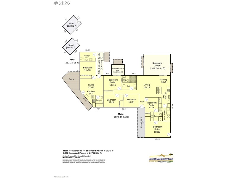
Great opportunity for large family or multi-generational living or adult foster care home: 6 bedrooms & 3 1/2 bathrooms, including extra bedroom, bath, living room, & kitchen with separate entrance. All 1-level. Laminate flooring in most rooms; granite counters and new appliances in kitchen. Newer roof, furnace, & hot water heater. Move-in ready. All appliances included. Lovely backyard includes fruit trees & grape arbor. Quiet cul-de-sac neighborhood.
TV Hwy. East, North on 198th, left on Johnson, rt on 200th Ct.
Dwelling Type: Residential
Subdivision: N/A
Year Built: 1976, County: US
TV Hwy. East, North on 198th, left on Johnson, rt on 200th Ct.
Listing is courtesy of CORE, Realtors
Sign in to your account to continue