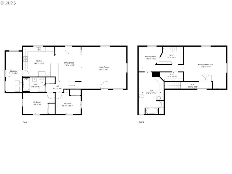
Set on a corner lot in the desirable west side Hucrest neighborhood, this 3-bedroom, 2-bath home offers 2,130 sq ft of updated living space with a unique layout designed for both function and flexibility. The main floor features a large living room that flows right into the kitchen and dining area, perfect for everyday living and entertaining. Fresh interior paint, wood accents, and natural light keep the space feeling bright and welcoming. Two bedrooms, a full bathroom, and a generous laundry room round out the main level. Upstairs, the primary suite spans the entire floor, giving you privacy and room to spread out. With multiple large closets, a sitting area (that could double as an office or nursery), and a spacious bathroom, it feels more like a retreat than just a bedroom. Outside, you’ll find plenty of room to enjoy the outdoors. A brand-new front porch adds curb appeal, while the covered back deck is made for year-round grilling or lounging. The fenced yard offers space for gardening, pets, or play, and the property includes two driveways, a carport, and plenty of off-street parking. DFN high-speed fiber optic internet keeps you well-connected. Located just minutes from town, this home combines convenience, comfort, and community in a sought-after location! Schedule your private tour today!
NW Stewart Pkwy > Harvey Ave > Keasey St > Calkins Ave to Home
Dwelling Type: Residential
Subdivision: N/A
Year Built: 1945, County: US
NW Stewart Pkwy > Harvey Ave > Keasey St > Calkins Ave to Home
Listing is courtesy of Different Better Real Estate