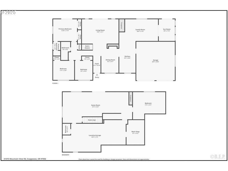
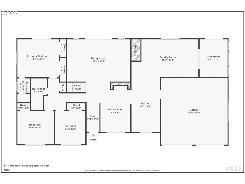
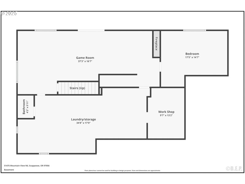
Looking for a perfect blend of house and location? This one may be it. With 4 bedrooms, 2 1/2 baths and over 3,000 square feet there is room for everyone in the family and then some. Unique double sided fireplace highlights the living and family room spaces. The formal dining makes entertaining family and friends easy. Lower level could be separate living with its large rooms and slider to the backyard. Enjoy morning coffee on the back deck overlooking the yard and mature trees. Don't be surprised if you see elk out and about around the neighborhood. Tons of storage including a detached shop/shed. This property checks so many boxes. Well worth a look!
Highway 30, west on Havlik to Old Portland Road, west on Dutch Canyon, R on Mt View to address
Dwelling Type: Residential
Subdivision: N/A
Year Built: 1971, County: US
Highway 30, west on Havlik to Old Portland Road, west on Dutch Canyon, R on Mt View to address
Listing is courtesy of RE/MAX Powerpros