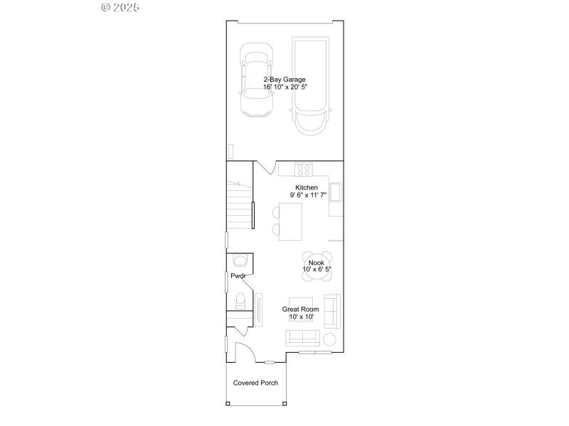
This new construction Smith Creek townhome sits on a corner lot and is conveniently located near I-5, just 7 minutes from Woodburn Premium Outlets and close to parks, golf courses, schools, and vineyards, with easy highway access for smooth commutes. Community amenities include a dog park, multiple playgrounds, picnic areas, trails, and a basketball court. The Pierce plan offers two spacious stories designed for modern living. On the main floor, an open layout seamlessly connects the kitchen, nook, and great room, perfect for both everyday living and entertaining, along with convenient access to a powder room. Upstairs, two secondary bedrooms surround a versatile loft that can be used as a shared living area or home office. Tucked at the back of the second floor, the private primary suite features its own en-suite bath and a generous walk-in closet. Interior highlights include quartz countertops, shaker-style cabinets, luxury vinyl plank flooring, and luxury vinyl tile. This home also includes central air conditioning, a refrigerator, washer and dryer, and blinds—all at no extra cost! Rendering is artist conception only. Photos are of a similar home, features and finishes will vary. Homesite #678. Expected completion: February 2026. Below-market rate incentives available when financing with preferred lender.
East from Freeway, R on Evergreen, L on Harvard. Harvard turns into Stubb Rd, L on Gunderson
Dwelling Type: Residential
Subdivision: SMITH CREEK
Year Built: 2026, County: US
East from Freeway, R on Evergreen, L on Harvard. Harvard turns into Stubb Rd, L on Gunderson
Listing is courtesy of Lennar Sales Corp
Sign in to your account to continue