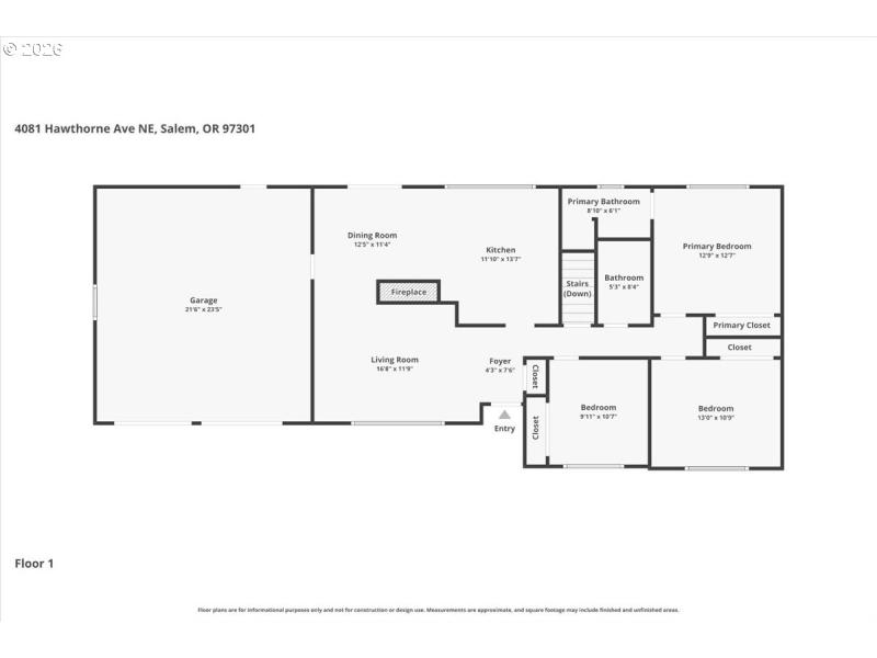
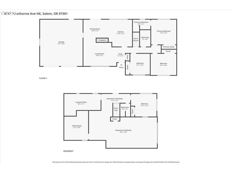
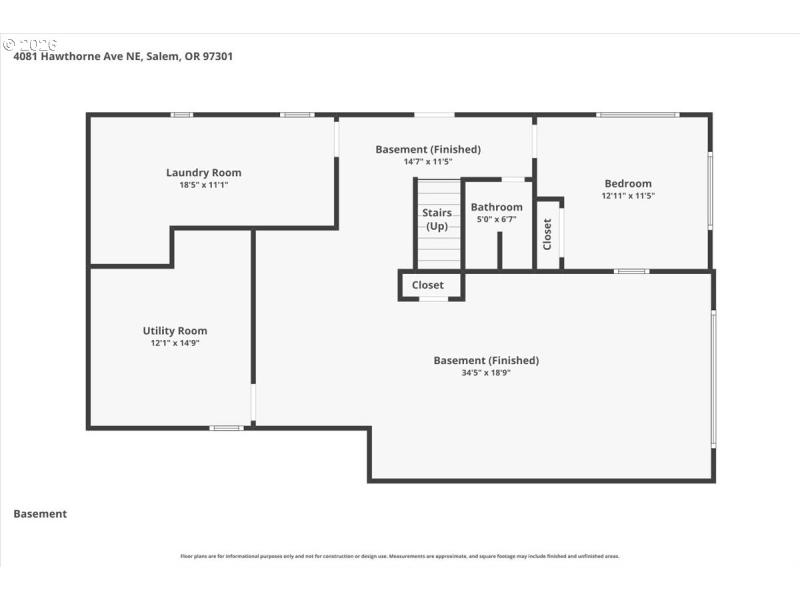
If you had your eyes on this one but couldn't afford the upgrades, then look again because this home has just completed a thoughtfully planned makeover on the upper floor! Location is key with easy freeway access, on a bus line, and close to several neighborhood amenities. Some notable features of this property include a sizeable lot with fully fenced back yard, original hardwood floors (some refinished), fresh interior paint in many areas, upgraded electrical outlets, a finished basement with its own private entrance, bedroom, and bathroom with enough room down there to add a kitchenette and turn it into a dual living space or guest quarters. Ask your agent for a private tour and come imagine the endless possibilities this home has to offer! All appliances included. Customization available for basement floor- Come tour the home and see what a beautiful job was done!
From I5, exit 258, go W on Portland Rd then left on Hawthorne.
Dwelling Type: Residential
Subdivision: N/A
Year Built: 1958, County: US
From I5, exit 258, go W on Portland Rd then left on Hawthorne.
Listing is courtesy of MORE Realty
Sign in to your account to continue