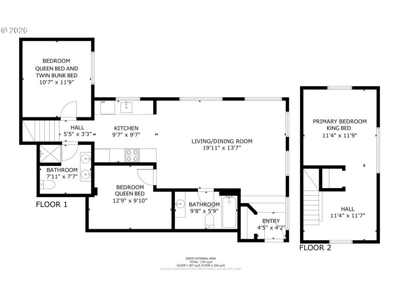
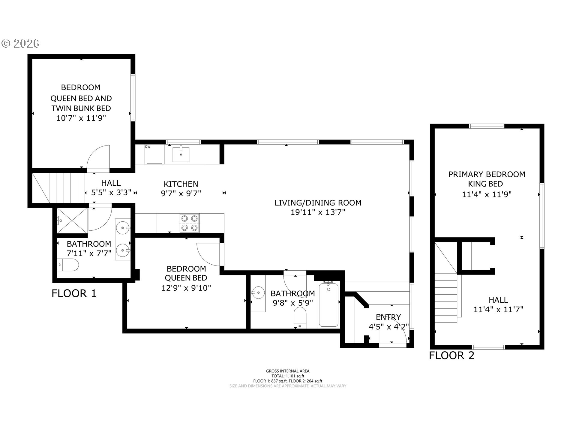
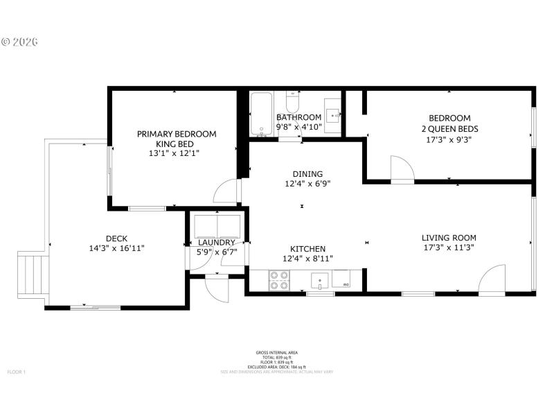
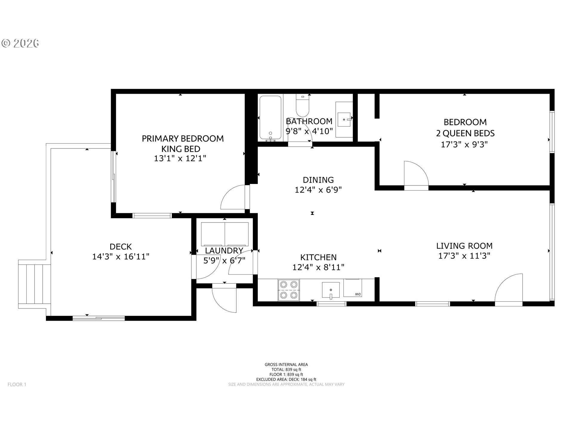
INCREDIBLE OPPORTUNITY in Rockaway Beach! This updated 7 unit coastal hotel is ideally located just across the street from easy beach access, making it highly desirable for vacationers seeking the ultimate Oregon Coast experience. Recent improvements elevate both comfort and functionality while maintaining the property's inviting coastal charm. The hotel offers multiple room styles and flexible layouts, appealing to a wide range of guests and maximizing rental potential. Outdoor amenities create a true gathering space, featuring a cozy fire pit for evening relaxation, a covered gazebo for year round enjoyment, and a sandy yard perfect for kids to play and explore. With the beach only steps away, guests can effortlessly enjoy ocean walks, stunning sunsets, and classic seaside activities, all within minutes of their rooms. Also, the quaint, beach town of Rockaway Beach is an easy walk and just a few block away. This turnkey hospitality property is well positioned for strong guest demand and repeat bookings. A rare chance to own a Rockaway Beach investment property offering excellent beach proximity, versatile outdoor spaces, and proven vacation appeal ideal for investors seeking a coastal hotel, short-term rental, or boutique lodging opportunity in one of the Oregon Coast's most popular destinations.
4th
Dwelling Type: CommercialSale
Subdivision: N/A
Year Built: 1940, County: US
4th
Listing is courtesy of Rob Trost Real Estate LLC
Sign in to your account to continue